Abstract

Traditional Islamic teachings and traditions involve guidelines that have direct applications in the domestic sphere. The principles of privacy, modesty, and hospitality are central to these guidelines; each principle has a significant effect on the design of Muslim homes, as well as on the organization of space and domestic behaviors within each home. This paper reviews literature on the privacy, modesty, and hospitality within Muslim homes. Nineteen publications from 1986 to 2013 were selected and analyzed for content related to the meaning of privacy, modesty, and hospitality in Islam and the design of Muslim homes. Despite the commonly shared guidelines for observing privacy, modesty, and hospitality within each home, Muslims living in different countries are influenced by cultural factors that operate within their country of residence. These factors help to shape the architectural styles and use of space within Muslim homes in different ways. Awareness of the multifactorial nature of the influences on the Muslim perception of home and the use of space is necessary for architects, building designers, engineers, and builders to be properly equipped to meet the needs of clients.

Keywords

Privacy ; Modesty ; Hospitality ; Muslim ; Islam ; Home

1. Introduction

The home environment is conceptualized in numerous ways in the academic literature. Some authors conceive a home in terms of the rich interdependent psychological meaning it holds for its occupants (Stafford, 2011 ; Moore, 2000 ; Sixsmith, 1986 ). Other scholars propose that a home expresses a symbolic social communication that defines interpersonal creative expression and style, as well as represents the social network and social class of its owner (Heathcote, 2012  ;  Altman and Chemers, 1984 ). Heathcote (2012) notes that the interior decor or the arrangement of the furniture and artifacts in a home reflects the lifestyle and ambitions, as well as the personal life journey, of the owner. Rybczynski (1987) conceptualizes home as a symbolic place that offers notions of domesticity, comfort, and well-being through domestic intimacy and privacy. Heathcote (2012) identified spatial and architectural elements such as doors, windows, and bedrooms as features that are functional but also exert substantial influence on human domestic behaviors and interactions within the home environment. Regardless of the size, number of available rooms, architectural style, or real estate value, each home provides its dwellers or owners with meanings that serve both their personal and social needs. Sixsmith (1986) suggests that a home is composed of three main structures: (a) the personal home (an extension of oneself with central emotional expression), (b) the social home (a place to share, entertain, and build relationships), and (c) the physical home (the physical structure, space, and architectural style). The above mentioned authors provide insights into the micro-level symbolic meaning of home from a universal perspective. By contrast, other authors including Altman and Chemers (1984) highlight the importance of macro-level factors, such as climate, culture, socioeconomic factors, and religion in shaping individual perceptions of home. One macro-level factor that requires considerable attention is the influence of other cultural traditions on home perception, space utilization, home design, and domestic behaviors. The migration of large numbers of people to countries with cultural and religious traditions that markedly differ from those of their country of origin is now commonplace. Home building in foreign lands that can meet particular individual needs presents an array of opportunities and challenges.

Many Muslims have established new homes in different locations across the globe in recent years. Islam involves strong religious traditions that apply directly to the structure and organization of life within the home and its environment. Within the Islamic faith, a home is considered to be a “microcosm of Islamic culture and civilization” that is of “matchless delight” (Omer, 2010 ). The design of traditional Muslim homes is subject to guidelines from principles outlined in Islamic Sharia Law, which are derived from the Quran (revelations of Allah to Prophet Muhammad) as well as hadiths and sunnahs (utterances and actions of Prophet Muhammad). Following three main principles have emerged from these guidelines ( Othman et al., 2014 ; Omer, 2010 ; Mortada, 2011 ):

  • privacy, a safe and private place for personal and family’s sanctuary;
  • modesty, a home with spaces for religious rituals and activities, further defined by humility in design through economical and sustainable designs, and;
  • hospitality, a dwelling with opportunities to extend hospitality to neighbours and enhance relationships with the society.

In combination, these three principles form the primary considerations of those who seek to create a traditional Muslim home (Othman et al., 2014 ). However, the migration of Muslims across the globe also exposes them to the cultures and traditions of their host countries. Many studies have focused on the ways Muslims achieve and perceive privacy and extend hospitality within their homes. However, little is known about the importance of domestic spaces for performing religious rituals and the practice of humility within the context of home design.

To date, the body of scholarly literature is related to the three principles of privacy, modesty, and hospitality, but their respective connections to home design are fragmented. To the best of our knowledge, a review of the available literature in this topic remains unavailable, thereby leaving architects, builders, and designers unfamiliar with the different design approaches used by Muslims within their homes to adhere to these principles. The present study aims to conduct a review of studies published over the past three decades to ascertain the influence of these three principles on the design of Muslim homes, considering the similarities and differences that emerge between countries.

2. Material and methods

Database searches were undertaken to identify publications that provide insights into the relationship between the Islamic principles of privacy, modesty, and hospitality, as well as the design of Muslim homes. Nineteen publications (nine journal articles, one conference paper, four theses, including two PhD theses and two MA theses, and five books) published from 1986 to 2013 were selected for this analysis. These publications focused on at least one or more of these tripartite principles and their respective connections to the design of Muslim homes. Among the 19 publications, 9 were retained for analyzing just one of the three principles, whereas the remaining 10 referred to two or three principles. A summary of all 19 publications is provided in Table 1 .

Table 1. Publications related to Muslim homes and the domains of privacy, modesty, or hospitality.
Domains examined Publication type Author(s) Purpose Theory/Conceptual framework Sample DAta collection method Country (focus of interest)
1 Privacy modesty Journal article Azizah and Putri (2013) To assess the extent of implementation of hijab in Arab houses in Pasar Kliwon; Surakarta Modesty and female physical privacy 5 Arab houses Case study Indonesia
2 Hospitality Journal article Sobh et al. (2013) To study home and commercial hospitalities and receptiveness towards foreign workers and visitors in Arab-Gulf culture Arab hospitality rituals, multiculturalism and 15 Qualitative Qatar and UAE
hyper-ritualization
3 Privacy Journal article Bekleyen and Dalkilic (2011) To investigate effects of climate and privacy measures on the characteristics of indigenous Courtyard home designs, Microclimate Privacy 5 (historical courtyard houses) Case study Turkey
courtyard houses in Diyarbakır
4 Privacy Conference paper Daneshpour (2011) To understand traditional concepts of privacy in Islamic societies and how they are translated in the current Islamic housings Privacy and Quran N/A Literature review Iran
5 Privacy Book Mortada (2011) To analyse Islamic traditional principles and values that govern Muslims׳ social and built environments with the non-Muslim “reader in mind” Sharia Law and built environment N/A N/A Worldwide
Modesty
Hospitality
6 Privacy Journal article Memarian et al. (2011) To analyse and compare privacy and hospitality patterns of houses and nomads׳ tents in Kerman Privacy and Sharia Law House types Analytic-logical and comparative methods Iran
Hospitality
7 Privacy Journal article Shabani et al. (2011) To analyse cultural and social attributes in response to privacy in traditional Iranian homes Privacy N/A Literature review Iran
Hospitality
8 Privacy Journal article Sobh and Belk (2011) To recognize contradictions between privacy and hospitality in Qatari homes from the Western modernity influences and implications to property marketers Privacy and hospitality 24 Qualitative (Hermeneutics) Qatar and UAE
Hospitality
9 Modesty Book Wan Teh and Nasir (2011) To explain concepts, functions, structural and elements in a traditional Malay house Humility in design in traditional Malay homes Traditional Malay homes N/A Malaysia
10 Privacy Book Omer (2010) To identify Islamic traditional teachings and principles towards Muslim housing design Islamic Housing and Sharia Law N/A N/A Worldwide
Modesty
Hospitality
11 Privacy Journal article Hashim et al. (2006) To understand privacy needs, regulating mechanisms and design effects on achieving privacy in two-storey low-cost terrace houses in Selangor Visual privacy and family intimacy 6 (1 of each housing design typology) Case study Malaysia
12 Privacy MA Thesis Hallak (2000) To study privacy patterns in single-family detached homes and townhouses of middle-class Muslim immigrants in Montreal Privacy, territoriality and cosmology 14 Case study Canada
13 Privacy PhD. Thesis Amor (2000) To investigate forces that shape Arab Muslim immigrants׳ home environments and neighborhood settings in Dearborn Grounded Theory 20 Qualitative USA
Modesty
Hospitality
14 Privacy PhD. Thesis Shraim (2000) To study hospitality and visibility in Islamic domestic space through visual separation of men׳s and women׳s domains Hospitality and gendered space 95 (4 house types) Isovist (quantitative and qualitative),space syntax Saudi Arabia
Hospitality
15 Privacy Journal article Bahammam (1987) To study visual privacy for women in traditional and modern neighborhoods in Damascus Visual privacy 200 (women) Quantitative (Face to face survey) Syria
16 Privacy Journal article Al-Hussayen (1999) To investigate and analyse spatial Traditional Islamic vernacular architecture 9 Case study Saudi Arabia
Modesty
characteristics, functions, usage and levels of comfort in Al-Madinah traditional houses
Hospitality
17 Privacy MA Thesis Bahammam (1987) To study architectural patterns of privacy in Riyadh׳s homes Privacy and Sharia Law 10 (housing typologies) Case study Saudi Arabia
18 Modesty Book Lim (1987) To understand the forms and history of the Malay house with regards to culture, religion, climate and economic factors Traditional Malay houses and village (kampung ) life Traditional Malay homes N/A Malaysia
Hospitality
19 Privacy Book Hakim (1986) To highlight and explain traditional design principles and building guidelines used by traditional Arab cities in 14th century through micro (citizens) and macro (rulers) urban design decisions Privacy, building design guidelines, urban design guidelines and architectural elements Traditional Arab homes N/A Middle East & North Africa

3. Results

3.1. Privacy and design of Muslim homes

Privacy in a traditional Muslim home strictly follows the teachings from the Quran, sunnahs , and hadiths to ensure that each home owner or dweller and his/her family are allowed to unwind and rest from the pressure and demands from the outside world ( Shabani et al ., 2011  ; Mortada, 2011  ;  Omer, 2010 ). Guarding home privacy is vital in Islam to promote a tranquil and functional family structure (Omer, 2010 ). In Muslim homes, privacy is the main factor that shapes how Muslim home dwellers “plan, build, perceive, and use their interior home spaces” (Omer, 2010 ). Bahammam (1987) and Mortada (2011) suggested that privacy in traditional Islamic homes involves four main layers of privacy: (a) privacy between neighbors׳ dwellings, (b) privacy between males and females, (c) privacy between family members inside a home, and (d) individual privacy (Fig. 1 ). Such privacy requirements are usually met through careful design by ensuring the safety of the family and separating the private life from public associations (Memarian et al., 2011 ). Design considerations involve the control of visibility through visual privacy, noise transmission through acoustic privacy ( Mortada, 2011 ; Hallak, 2000  ;  Bahammam, 1987 ), and odor control through olfactory privacy (Sobh and Belk, 2011 , Sobh et al., 2013 ).


Layers of privacy in traditional Muslim׳s home (Bahammam, 1987).


Fig. 1.

Layers of privacy in traditional Muslim׳s home (Bahammam, 1987 ).

3.1.1. Visual privacy

Optimum visual privacy is a predominant design objective to ensure the safety and privacy of female family members within Muslim homes (Al-Kodmany, 1999 ). This privacy can be achieved by various external design interventions, such as the location and design of entrance doors, the placement and sizes of windows and openings, the control of building heights and balconies, and the incorporation of internal courtyards and gendered spaces (Mortada, 2011 ; Bahammam, 1987  ;  Hakim, 1986 ). The front entrance door is the most obvious demarcation between the public and private realms. Entrance doors in traditional Muslim homes are placed away from the main street and not directly facing the opposite neighbors (Fig. 2 ) (Bekleyen and Dalkiliç, 2011 ; Mortada, 2011  ;  Bahammam, 1987 ). Clear examples of this design can be observed in indigenous courtyard homes in Diyarbakir, Turkey, which is a city inhabited by Muslims, Christians, and Jews (Bekleyen and Dalkilic, 2011 ).


Ground floor plan of Cahit Sitki Taranci׳s home (now Diyarbakir Museum) in ...


Fig. 2.

Ground floor plan of Cahit Sitki Taranci׳s home (now Diyarbakir Museum) in Diyarbakir, Turkey (Baran et al., 2011 , p. 613).

Islamic teachings remind Muslims not to violate household visual privacy by looking into other׳s home through their windows (Daneshpour, 2011  ;  Hakim, 1986 ). Some windows have been designed and installed in traditional Muslim homes with this consideration in mind to ensure that such incidents are avoided (Fig. 3 ). For example, most traditional mud houses in Saudi Arabia have very small windows, whereas some houses use high-level windows (approximately 1.75 m high) on ground floor windows (Fig. 3 ) (Mortada, 2011 ; Shraim, 2000 ; Al-Hussayen, 1999  ;  Hakim, 1986 ). Visibility to the outside is minimized through the use of wooden lattice screens or mashrabiya ( Daneshpour, 2011  ;  Mortada, 2011 ). Another design approach used to ensure visual privacy in traditional Muslim homes is the control of building heights throughout the neighborhood ( Daneshpour, 2011  ;  Mortada, 2011 ). The use of similar building heights and careful alternative locations of windows, such that the windows do not face tenants living opposite the home, are used to control the visibility; thus, home dwellers, especially females, are visually protected from outside strangers (Daneshpour, 2011 ).


Traditional Islamic window height guidelines in Arabic cities (Hakim, 1986, p. ...


Fig. 3.

Traditional Islamic window height guidelines in Arabic cities (Hakim, 1986 , p. 34).

The introduction of courtyards in traditional Muslim homes in the Middle East allows for adequate distances to prevent direct visibility into the internal home spaces of neighbors; these courtyards were also designed to mitigate climatic factors in some of these countries (Bekleyen and Dalkiliç, 2011 ; Al-Kodmany, 1999  ;  Bahammam, 1987 ). Apart from meeting privacy requirements, these design approaches are eco-efficient, thereby creating a cool and comfortable indoor home environment despite the extreme outside climate (Bahammam, 1987 ). For instance, indigenous courtyard homes in Diyarbikir, Turkey were designed such that all “summer rooms” are in the southern section of the courtyard, facing north, whereas all “winter rooms” are in the northern section, facing south (Bekleyen and Dalkilic, 2011 ), as shown in Fig. 2 . The center courtyard functions as an important space to provide cool cross-air ventilation during summer, light to its surrounding spaces, and a private outdoor space for the home dwellers (Bekleyen and Dalkilic, 2011 ). The grand north-facing and decorative covered open space (a cool room or iwan , as shown in Fig. 2 ) catches the cool summer breeze and creates a pleasant microclimate (Bekleyen and Dalkilic, 2011 ). This space is mostly used by its tenants during summer for private functions and musical entertainment (Bekleyen and Dalkilic, 2011 ). Courtyard homes meet the design requirements for privacy and climate while providing opportunities for landscaped interventions, such as the incorporation of fountains, shade trees, Islamic calligraphy, and design motifs ( Bekleyen and Dalkiliç, 2011 ; Al-Kodmany, 1999  ;  Bahammam, 1987 ).

The creation of gendered spaces is another crucial criterion for maintaining visual privacy when designing Muslim homes (Sobh and Belk, 2011  ;  Al-Hussayen, 1999 ). Visual privacy is viewed as a legitimate measure, although the Quran does not obviously state the obligation to have gendered spaces in homes, except for the social restrictions and allowed behavior between “not blood-related” (non-muhrim ) men and women ( Sobh and Belk, 2011 ). The domestic domain of a Muslim home is regarded as a female space (Sobh and Belk, 2011 ). Women in the Middle Eastern countries embrace gender-segregated spaces that are enforced by the social system and turn these spaces into their respective domains ( Sobh et al ., 2013  ; Sobh and Belk, 2011  ;  Al-Hussayen, 1999 ). For example, Arab-Gulf women take this opportunity to visit each other, exchange recipes and ideas, or display their current purchases of designer clothing, fragrances, or expensive beauty products in the privacy of the female salon ( Sobh and Belk, 2011 ). Arab-Gulf women are the key decision makers on domestic matters, such as interior design and furniture; these women also determine the people allowed to enter their homes (Sobh and Belk, 2011 ).

3.1.2. Acoustical privacy

Maintaining acoustical privacy is another important criterion in the design of traditional Muslim homes (Mortada, 2011 ). The main consideration in achieving this objective is the control of sound transmission and vibration from the outside into the internal domain or from one internal room or space to another (Mortada, 2011  ;  Hakim, 1986 ). This level of privacy is achieved by thick walls to ensure acoustical privacy and to fulfill privacy requirements, as shown in Fig. 4 (Hakim, 1986 ). Thick layers of walls made of mud bricks, stones, and rocks are commonly used in several traditional homes in the Middle East to ensure proper sound insulation (Mortada, 2011  ;  Hakim, 1986 ). This design intervention is also applied to floors and roofs to ensure the consistent control of horizontal and vertical sound transmission (Mortada, 2011  ;  Hakim, 1986 ).


Example of thick external walls for optimum acoustical privacy (Hakim, 1986).


Fig. 4.

Example of thick external walls for optimum acoustical privacy (Hakim, 1986 ).

Internal spaces are usually divided into three main zones to achieve acoustical privacy, namely, male, female, and service zones, which are linked via courtyards (Mortada, 2011  ;  Al-Kodmany, 1999 ). The use of gendered spaces provides additional control of sound transmission based on exclusive rooms for males or females (Mortada, 2011 ). These gendered spaces are separated by circulation spaces and corridors to further ensure that acoustical privacy is maintained (Memarian et al ., 2011  ; Mortada, 2011  ;  Sobh and Belk, 2011 ). Ensuring that the public (male and public areas) and semi-public (female and family rooms) spaces are located closest to the main entrance restricts the noise to the front areas and maintains acoustical privacy for private spaces (Al-Hussayen, 1999 ).

3.1.3. Olfactory privacy

Privacy in Muslim homes is not strictly limited to visual and acoustical privacy. Sobh and Belk (2011) claim that olfactory privacy also plays an important role in the control of smells or odors produced in kitchens to prevent them from spreading to spaces where guests are entertained. Some traditional Muslim home owners in the Middle East commonly use incense (incense woods or oud or incense sticks or agrabati ) to disinfect the house and control the olfaction produced from cooking areas ( Sobh et al ., 2013  ;  Sobh and Belk, 2011 ). Although the Quran does not explicitly discuss the use of incense, some statements in hadiths imply that incense is a good traditional practice to purify the home and a medicine to treat tonsillitis in children ( Omer, 2010 ). The practice of removing shoes prior to entering a host׳s home is another representation of a guest׳s attempt to minimize any pollution and to maintain pleasant odors within the home (Sobh and Belk, 2013; Hakim, 1986 ).

The three types of privacy allow home owners and dwellers in these traditional homes to achieve optimum levels of privacy and security for their families, especially safety for the female members. Both visual and acoustical privacy involve external and internal spaces, whereas olfactory privacy concentrates on interior spaces. A summary of the three of types of privacy and the various methods used to achieve them is provided in Table 2 , as discussed in this section.

Table 2. Types of privacy in traditional Muslim homes.
Types of privacy Location Design considerations
Visual External 1. Doors :
Entrance doors are placed away from the main street and not directly facing the opposite neighbors
2. Windows :
a) Above eye level windows (approximately 1.75 m high) at lower floors with small openings;
b) Higher level windows with timber lattice screens (mashrabiya )
3. Building heights :
Similar building heights and windows are not directly facing opposite neighbors
Internal 1. Courtyard :
Providing microclimate and direct visibility into neighbors׳ internal home spaces
2. Gendered spaces :
Separation of male and female guest areas to maintain privacy and safety for women
Acoustical External Floors, walls and roofs should not allow penetrations of voices to neighborhood dwellings and streets, especially women
Internal Thickness of walls and dense materials, such as mud bricks, stones and rocks are used
Internal spaces are divided into three zones to achieve privacy: male, female and service (linked through courtyard)
Olfactory Internal Oud (agarwood) are used as incense to disinfect the house and control smell from cooking odors reaching guests

4. Humility in design and spaces for performing religious activities

Modesty (haya in Arabic) is a personality trait, wherein one remains polite and humble without necessarily lacking self-esteem or self-confidence ( Azizah and Putri, 2013 ). The act of modesty can be classified into two main categories: (a) physical modesty in terms of dress code and design humility, and (b) inner modesty in terms of internal perception (self-improvement or self-motivation) and social interaction (shyness, humility, and politeness) ( Azizah and Putri, 2013  ;  Mortada, 2011 ). In terms of home design and built environments, Islamic guidelines from Sharia Law emphasize the need for the design of a home to provide (a) a balance of neighborhood wealth by not showing off one׳s wealth through excessive spending on a home (external area of a home) and (b) private spaces for religious activities and education (Mortada, 2011 ).

Modesty principles are part of various long established traditions, cultures, and religions, but the Western society in the 21st century mostly conceives modesty in Islam to rest on the Muslims׳ dress code as acts of decency and respect (veiling or hijab ). This subject has become highly controversial in recent years. The perceived “intimate parts” or awrah differ in accordance with the gender of an individual. The awrah for Muslim men is from the navel to the knee, whereas that for Muslim women is predominantly the entire body, except for the face and hands with respect to non-muhrims ( Azizah and Putri, 2013 ). This conception of the awrah is the Islamic way of protecting women from non-muhrim men in terms of any indecent gestures that may lead to prohibited sexual assault or abuse, whether outside or inside a home ( Azizah and Putri, 2013 ).

The central importance of being modest is made evident by considering the meaning of the word “Islam” itself. “Islam” comes from an Arabic word root salam , which means peace. Islam means submission or surrendering in Arabic and implies total submission to the Almighty God (Allah ) ( Mortada, 2011 ). The act of praying to Allah (God) by making oneself humbly prostate on the ground symbolizes the Muslims׳ recognition of Allah to seek constant guidance and support. This act signifies the importance of practicing five prayers a day to constantly remind a Muslim of the need to be humble and modest to Allah.

4.1. External modesty: humility in design

Islam emphasizes the importance of humility in design and prohibits any exuberant disbursals, wrongdoings, excessive spending, or desires for infamy (Mortada, 2011  ;  Omer, 2010 ). This humble behavior is based on the function of a home as a basis of society, as described in Sharia Law and reflected by Prophet Muhammad׳s lifestyle (Mortada, 2011 ). His house in Medina was built on the basis of a simple rectangular shape with external walls made of palm fibers and simple fabric, as shown in Fig. 5 (Mortada, 2011  ;  Omer, 2010 ).


Floor plan of Prophet Muhammad׳s house in Medina (623 AD) (Mortada, 2011, p. ...


Fig. 5.

Floor plan of Prophet Muhammad׳s house in Medina (623 AD) (Mortada, 2011 , p. 43).

The use of locally sourced materials rather than expensive imported materials embodies design humility “ideas and principles on which sustainable living should be based” (Mortada, 2011  ;  Wan Teh and Nasir, 2011 ). Traditional Malay houses were built using local materials from the site and constructed through the combined effort of home owners and neighbors (Wan Teh and Nasir, 2011 ; Hashim et al ., 2006  ;  Lim, 1987 ). The roof of a traditional Malay house is usually made of coconut leaves or nipah palm leaves, a type of palm tree that grows densely along the riverbanks, as shown in Fig. 6 ( Wan Teh and Nasir, 2011  ;  Lim, 1987 ). This type of roof provides a waterproofed shelter that is locally built to suit the humid and warm climate in Malaysia (Fig. 6 ) ( Wan Teh and Nasir, 2011  ;  Lim, 1987 ). Floral engraved decorative timber walls, windows, screens, and panels follow the traditional Middle Eastern Islamic decorative style via abundant local sources ( Wan Teh and Nasir, 2011 ; Hashim et al ., 2006  ;  Lim, 1987 ). This technique enables Malaysian Muslims to achieve similar Islamic design motifs via alternative economical and sustainable approaches (Wan Teh and Nasir, 2011 ).


Weaved nipah leaves during drying (Lee, 2014).


Fig. 6.

Weaved nipah leaves during drying ( Lee, 2014 ).

4.2. Internal modesty spaces: areas for religious activities

All Muslim homes are required to have spaces for prayer (salat in Arabic or namaz in Urdu) ( Omer, 2010 ). The flexibility of the location for the five prayers-a-day practice allows Muslim owners to perform these prayers at home with families and even friends. Several Muslim homes utilize one of the rooms closest to living rooms as a special prayer room, which is equipped with accessible toilets for ablution or cleansing ( Mortada, 2011  ;  Omer, 2010 ). A traditional Malay house in Malaysia uses the spacious guest reception area (men׳s area) or serambi at the front of the house as an area where congregational prayers are held during special or festive occasions ( Hashim et al ., 2006  ;  Lim, 1987 ). Traditional homes in the Middle East normally use men׳s majlis , the only part of the house that is directly accessible from the main entrance, to perform these prayers or salat ( Mortada, 2011 ). The traditional Malay homes adopt similar approach with respect to religious activities at home. The five prayers are practiced at home as a family ritual, except for Friday prayers, which are held at the local surau , a small and simple version of a mosque ( Lim, 1987 ). Other religious activities in some traditional Malay kampung homes include daily religious classes, Quran teaching, and reading among young children to maintain Islamic education among Muslims in the neighborhood ( Lim, 1987 ).

Traditional Islamic teachings recommend that a Muslim home dweller should beautify the internal space of his/her home by using non-idolatry decorations or artefacts, such as flowers and decorated fabrics instead of expensive gold or any animal- or human-like statues (Mortada, 2011  ;  Omer, 2010 ). Decorative floral decorative patterns or Islamic calligraphy are among the favorite wall patterns of a traditional Muslim home; floral pattern rugs are also used to express the concept and symbolism of Islamic modesty (Hashim et al., 2006 ). Simple furnishings are common in traditional Malay homes and reflect their lifestyle and economic situations (Lim, 1987 ). Most Malay families who live in Malay kampung houses have a low socioeconomic status and generally have an agricultural background. Floor mats are mostly made of pandanus leaves or mengkuang , which are locally available and handmade ( Lim, 1987 ). Modesty has been described as one of the 77 branches of the Islam faith in the sunnahs , which states that a person should be moderate and humble in all of his/her actions and behaviors ( Omer, 2010 ).

5. Extending hospitality and strengthening relationships with society

Hospitality can be defined as constitutional acceptance of or receptiveness to others; this trait has played an important role in the traditional Islamic society (Sobh and Belk, 2013; Shraim, 2000 ). Hospitality is closely associated with the compassionate treatment of strangers and with the significance of sharing with others within the Islamic culture (Memarian et al ., 2011  ;  Sobh and Belk, 2011 ). Entertaining guests in Islam represents a family׳s openness and generosity to others, such that hospitality is incorporated into their private domains (Sobh and Belk, 2011 ). Although Islam recommends humility and promotes frugality or avoiding any wastage, this trait does not necessarily limit the generosity and hospitality to a Muslim׳s guest (Sobh and Belk, 2013). Social interaction and the building of neighborly relationships to achieve social solidarity or ummah (brotherhood) among Muslims and others are strongly encouraged within Islam. Sobh and Belk (2013) highlight that Islamic hospitality etiquette “equally accommodates frugality and opulence” in honor of their guests.

5.1. Public hospitality domains: male guests

Within the Islamic culture, hospitality is demonstrated by the host through his or her efforts to ensure that guests feel comfortable and “at home” while being entertained (Sobh et al ., 2013  ; Amor, 2000  ;  Shraim, 2000 ). Most traditional Muslim societies are patriarchal; thus, men play an important role in entertaining guests in the public domain of the house (Sobh and Belk, 2013). The majlis or “a place of sitting” represents the masculinity and honor of a Muslim home ( Sobh and Belk, 2011 ). This part of the house is the only one that is directly accessible from the street and the main entrance (Sobh and Belk, 2011 ). Several traditional homes in Iran still follow the traditional rules of biruni (exterior area) and andaruni (interior territory of the house); the guest rooms are decorated with Persian rugs and other ornaments to demonstrate their acceptance of guests and the importance of hospitality ( Shabani et al., 2011 ).

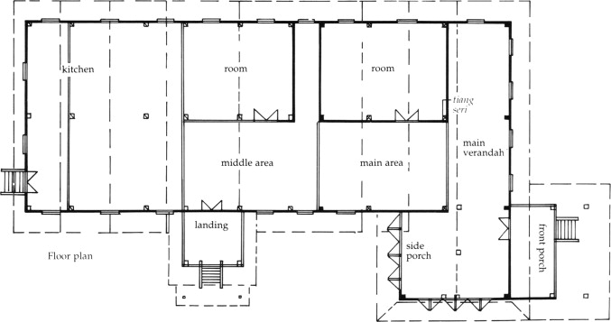
Traditional Malay houses in Malaysia use subtle yet penetrative Islamic approaches based on esthetic, spiritual, and ethical values (Hashim et al ., 2006  ;  Lim, 1987 ). Compared with traditional housing behavioral cognitions in the Middle East, traditional Malay communities embrace community intimacy over family privacy (Hashim et al ., 2006  ;  Lim, 1987 ). A spacious main verandah or serambi at the front of the house (Fig. 7 ) is a vital design element of a traditional Malay house for receiving and entertaining guests, particularly male visitors ( Wan Teh and Nasir, 2011 ; Hashim et al ., 2006  ;  Lim, 1987 ). Various activities such as meetings, discussions, and prayers are held in serambi , whereas other social and neighborhood informal conversations and interactions take place on the front porch, as shown in Fig. 7 ( Wan Teh and Nasir, 2011 ; Hashim et al ., 2006  ;  Lim, 1987 ).


Floor plan of traditional long-roofed house, Selangor, Malaysia (Wan Teh and ...


Fig. 7.

Floor plan of traditional long-roofed house, Selangor, Malaysia (Wan Teh and Nasir, 2011 , p. 19).

5.2. Semi-public hospitality spheres: female spaces

Extending hospitality is not strictly limited to entertaining male guests within the Islamic culture. A home is considered a female domain within Islamic tradition; female members of the family should have strong bonds with their female friends and relatives to exchange or keep updated with current news and information (Sobh and Belk, 2011 ). Hospitality in traditional Middle Eastern homes emphasizes the need for separate male and female social spaces (Memarian et al., 2011 ; Sobh and Belk, 2011 ). This requirement is clearly demonstrated by examples ranging from the simple Ashayer nomadic tent in Kerman, Iran (Memarian et al., 2011 ) to the elegant traditional Iranian courtyard homes (Shabani et al., 2011 ). The female entertainment space or salon in traditional Middle East homes is made of more elegant materials and may have more modern decor as compared with the men׳s majlis ( Sobh and Belk, 2011 ).

Unlike the Muslims living in Iran, those living in traditional Malay houses maintain the simplicity of the design of traditional Malay house throughout the home (Lim, 1987 ). Female family members and friends use the middle section (selang or rumah tengah ) of the house to socialize when male guests are entertained in the guest reception area (serambi ). However, female family members and friends usually use the main bedroom or rumah ibu , which is adjacent to guest reception area or serambi ( Fig. 7 ), to continue their conversations after the guests have left the house ( Wan Teh and Nasir, 2011  ;  Lim, 1987 ). When guests stay overnight, the female members of the family sleep on the floor or on mattresses in the back section of the house (selang or rumah tengah ), as shown in Fig. 7 ( Wan Teh and Nasir, 2011  ;  Lim, 1987 ). Female family members dominate the kitchen (dapur ) for cooking and food preparation; this domain of the house has a separate back entrance, as shown in Fig. 7 ( Wan Teh and Nasir, 2011  ;  Lim, 1987 ).

5.3. Private hospitality areas: family spaces

Family gatherings are important to the Muslims׳ notion of hospitality. These occasions provide immediate and extended family members with opportunities for entertaining, sharing food, performing various rituals, and having other forms of recreation in an environment of optimal protection and safety (Sobh et al. 2013 ). Family gatherings include a wife׳s muhrim , namely, her father, father-in-law, sons, son-in-laws, brothers, nephews, and uncles; these family members may enter the house even without the presence of their husbands ( Amor, 2000  ;  Shraim, 2000 ). In countries under theocratic governments such as Iran, public entertainment and women׳s mobility and presence are restricted; consequently, family gatherings at home become essential weekend activities (Shabani et al., 2011 ). When female family members or guests need to retreat to areas where visual privacy is not controlled, head coverings or hijab are important to protect the females׳ body privacy from non-muhrim male strangers and maintain their modesty (Sobh and Belk; 2013). Maintaining physical modesty through dress code becomes an integral part of protecting the females׳ body privacy while allowing hospitable activities to continue within a home.

6. Discussion

This paper presents a review of the literature related to the roles of traditional Islamic teachings in shaping the design of Muslim homes through adherence to the three principles of privacy, modesty, and hospitality. Similarities and differences were found between different countries and different cultures. In Middle Eastern countries such as the Arab-Gulf countries, Saudi Arabia, Iran, and Turkey, particular emphasis is placed on privacy through the segregation of male and female spaces; this requirement affects the layout and design of these homes (Mortada, 2011  ;  Sobh and Belk, 2011 ). In other parts of the Muslim world, such as Malaysia, privacy, modesty, and hospitality are observed by home dwellers through subtle design approaches.

Only two of the publications (both academic theses; Table 1 : publications 12 and 13) are based on research that was conducted in non-Islamic countries; these publications provide insights into the effects of Islamic traditional teachings on Muslim home design and interior settings. Hallak (2000) focused on privacy patterns among the Shaamy middle-class immigrants living in townhouses and detached homes in Montreal, Canada, as well as on the privacy mechanisms (physical and behavioral) used to meet their privacy requirements. Amor (2000) investigated the influences on the home interiors and neighborhood settings of Arab immigrants around Dearborn, Michigan.

The literature review indicates that privacy, modesty, and hospitality are mutually beneficial because they enable the creation of a peaceful and safe home. Within Islam, a home is conceived as (a) a place for personal and family privacy, (b) a modest space for religious activities at home while showing humility to the neighborhood, and (c) a base for extending hospitality and strengthening relationships with family and society; thus, humankind is held responsible for creating a pleasant built environment by acting as successors or khalifa (caliphs) on Earth ( Mortada, 2011  ;  Omer, 2010 ). Omer (2010) presents 24 design recommendations with respect to building a Muslim home based on the teachings from Sharia , which are also consistent with strict traditional guidelines derived from the Quran and sunnahs .

Despite the existence of common Islamic principles for observing privacy, modesty, and hospitality within a Muslim home, several other factors affect home designs; these factors include local culture, climate, and topography (Altman and Chemers, 1984 ). Modern interpretations of traditional guidelines on home design and use of domestic spaces necessarily involve design solutions that fit with the local climate, current architectural trends, and building codes/regulations.

Some of the traditional design examples described in this paper provide design solutions to ensure that Muslims can adhere to the tripartite Islamic principles within the domestic sphere. These examples also address other design needs related to the cost of construction, climate, temperature, and social cohesion within neighborhoods. For example, a courtyard home serves as a microclimate modifier and a way to separate public from private spaces, but it also maximizes the openness of the interior space, thereby making it visually more spacious than home designs without an internal courtyard. Nevertheless, careful consideration is required to ensure that the orientation of buildings and the organization of internal and external spaces suit the prevailing climate of a given site or location if the best microclimate is to be achieved.

7. Conclusion

The concept that the principles of privacy, modesty, and hospitality remain important in the present is supported by information from the 19 publications reviewed in this paper. These principles have emerged through the analysis of the literature. The commonalities, similarities, and differences in the mechanisms used by Muslims to abide by these principles provide architects, building designers, interior designers with a range of design options that can be drawn upon when dealing with Muslim clients. The architectural styles and materials used in homes built in the Middle East obviously differ from homes in other predominantly Muslim countries, such as Malaysia, because of climatic factors and locally available materials. Despite these factors, homes in predominantly Muslim countries tend to share a “humility in design” approach, such that homes are built with economical and sustainable materials that also provide thermal comfort.

Information on the influence of privacy, modesty, and hospitality on the design of Muslim homes in non-Muslim countries is extremely limited. Notably, the authors located two publications that focused on the influence of a single principle (privacy or hospitality), although these studies were conducted in only two countries (USA and Canada). Further research on the influence of the tripartite Islamic principles on the homes of Muslims living in non-Muslim regions such as Australia and Europe, as well as in different locations within the United States and Canada, must be conducted. Such research is crucial to further elucidate the degree to which Western culture affects the Muslim immigrants׳ use of interior and exterior spaces and domestic behaviors, as well as to determine the different modifications they make to existing houses within their host countries, as a means to consistently adhere to traditional Islamic teachings. Nevertheless, the findings from this literature review on the design approaches used by Muslims in different countries are likely to benefit professionals who work in the building industry by expanding the suite of design options they can offer their Muslim clients who live in non-Muslim countries. Furthermore, the many design features covered by this literature review have the potential for broader applications to the homes of non-Muslims who wish to meet the design objectives shared by Muslims and non-Muslims, such as visual privacy from neighbors, thermal comfort, and use of sustainable and economical materials.

Acknowledgments

We thank all the authors who permitted the inclusion of their respective photographs and figures in this review.

References

  1. Al-Hussayen, 1999 M.A. Al-Hussayen; Spatial characteristics of traditional houses of Al-Medinah, Saudi Arabia; Archit. Sci. Rev., 42 (4) (1999), pp. 271–282 http://dx.doi.org/10.1080/00038628.1999.9697429
  2. Al-Kodmany, 1999 K. Al-Kodmany; Residential visual privacy: traditional and modern architecture and urban design; J. Urban Des., 4 (3) (1999), pp. 283–311
  3. Altman and Chemers, 1984 I. Altman, M.M. Chemers; Culture and Environment; Cambridge University Press, Cambridge (1984)
  4. Amor, 2000 M.C. Amor; Arab Muslim Immigrants in the United States: Home Environment Between Forces of Change and Continuity; (Doctor of Philosophy/Thesis) University of Missouri-Columbia, Columbia, Missouri, USA (2000)
  5. Azizah and Putri, 2013 R. Azizah, R.H. Putri; Implementation of hijab concept in Arab house Pasar Kliwon Surakarta; J. Islam. Archit., 2 (3) (2013), pp. 106–113
  6. Bahammam, 1987 A.S. Bahammam; Architectural Patterns of Privacy in Saudi Arabian Housing; (Master of Architecture/Thesis) McGill University, Montreal (1987)
  7. Baran et al., 2011 M. Baran, M. Yıldırım, A. Yılmaz; Evaluation of ecological design strategies in traditional houses in Diyarbakir, Turkey; J. Clean. Prod., 19 (6) (2011), pp. 609–619 http://dx.doi.org/10.1016/j.jclepro.2010.11.001
  8. Bekleyen and Dalkiliç, 2011 A. Bekleyen, N. Dalkiliç; The influence of climate and privacy on indigenous courtyard houses in Diyarbakır, Tur; Sci. Res. Essays, 6 (4) (2011), pp. 908–922
  9. Daneshpour, 2011 Daneshpour, A. 2011. Concept of privacy in housing design based on Islamic teachings. In: Proceedings of the First Iranian Students Scientific Conference, Malaysia.
  10. Hakim, 1986 B.S. Hakim; Arabic-Islamic Cities: Building and Planning Principles, KPI, London (1986)
  11. Hallak, 2000 M.E. Hallak; Privacy in Homes of Shaamy Muslim Immigrants: A Study of Privacy Patterns in Single-Family Detached Homes and Townhouses of Middle-Class Immigrants in Montreal; (Master of Architecture/Thesis Masters) McGill University, Montreal (2000)
  12. Hashim et al., 2006 A.H. Hashim, Z. Abdul Rahim, S.N.S.A. Rashid, N. Yahaya; Visual privacy and family intimacy: a case study of Malay inhabitants living in two-storey low-cost terrace housing; Environ. Plan. B, 33 (2) (2006), pp. 301–318
  13. Heathcote, 2012 E. Heathcote; The Meaning of Home (Illustrated ed.); Frances Lincoln Limited, London (2012)
  14. Lee, 2014 Lee, T. (2014). Turbineman׳s Log. Attap Factory Retrieved 27 November, 2014, from 〈http://turbinemanlog.blogspot.com.au/2010/02/attap-factory.html〉 .
  15. Lim, 1987 J.Y. Lim; The Malay House: Rediscovering Malaysia׳s Indigenous Shelter System; Institut Masyarakat, Pulau Pinang, Malaysia (1987)
  16. Memarian et al., 2011 G.H. Memarian, S.M.H. Toghr-oljerdi, A.M. Ranjbar-Kermani; Privacy of house in Islamic culture: A comparative study of pattern of privacy in houses in Kerman; Int. J. of Archit. Eng. Urban Plan., 21 (2) (2011), pp. 69–77
  17. Moore, 2000 J. Moore; Placing home in context; Journal Environ.Psychol., 20 (3) (2000), pp. 207–216 http://dx.doi.org/10.1006/jevp.2000.0178
  18. Mortada, 2011 H. Mortada; Traditional Islamic principles of built environment; RoutledgeCurzon, New York (2011)
  19. Rybczynski, 1987 W. Rybczynski; Home: A Short History of an Idea; Penguin Books, New York, NY (1987)
  20. Omer, 2010 S. Omer; Islam and Housing; A.S. Noordeen, Kuala Lumpur, Malaysia (2010)
  21. Othman et al., 2014 Z. Othman, L. Buys, R. Aird; Observing privacy, modesty and hospitality in the home domain: three case studies of Muslim homes in Brisbane, Australia; Int. J. of Archit. Res., 8 (3) (2014), pp. 266–283
  22. Shabani et al., 2011 M.M. Shabani, M. Mohd Tahir, H. Shabankareh, H. Arjmandi, F. Mazaheri; Relation of cultural and social attributes in dwelling, responding to privacy in Iranian traditional house; J. Soc. Sci. Humanit. Univ. Kebangs. Malays., 6 (2) (2011), pp. 273–287
  23. Shraim, 2000 M.A. Shraim; Hospitality and Visibility in Domestic Space: An Analysis of Visual Separation Between the Men׳s and Women׳s Domains of Domestic Space in Riyadh; (Doctor of Philosophy/Thesis) Georgia Institute of Technology, Atlanta, Georgia, USA (2000)
  24. Sixsmith, 1986 J. Sixsmith; The meaning of home: an exploratory study of environmental experience; J. Environ. Psychol., 6 (4) (1986), pp. 281–298 http://dx.doi.org/10.1016/s0272-4944(86)80002-0
  25. Sobh et al., 2013 R. Sobh, R.W. Belk, J.A.J. Wilson; Islamic Arab hospitality and multiculturalism; Mark. Theory, 13 (4) (2013), pp. 443–463 http://dx.doi.org/10.1177/1470593113499695
  26. Sobh and Belk, 2011 R. Sobh, R. Belk; Domains of privacy and hospitality in Arab Gulf homes; J. Islam. Mark., 2 (2) (2011), pp. 125–137
  27. Stafford, 2011 A. Stafford; The Psychological Significance of Home; (Doctor of Psychology/Thesis) The Wright Institute, Ann Arbor (2011)
  28. Wan Teh and Nasir, 2011 W.H. Wan Teh, A.H. Nasir; The Traditional Malay House (Fourth ed.); Penerbit Fajar Bakti, Shah Alam, Malaysia (2011)
Back to Top

Document information

Published on 12/05/17
Submitted on 12/05/17

Licence: Other

Document Score

0

Views 456
Recommendations 0

Share this document

Keywords

claim authorship

Are you one of the authors of this document?