Abstract

This study assessed the performance of residential buildings in public housing estates in urban areas of Ogun State Southwest Nigeria. It was based on the notion that users' satisfaction with dwelling units is a measure of the performance of residential buildings in meeting their needs and expectations. A cross sectional survey of 452 household heads in nine public housing estates was conducted in the study area. Data were obtained using structured questionnaire and observation schedule; and were subjected to descriptive statistics and factor analysis. A mean satisfaction score of 3.21 was observed; indicating that the respondents were generally satisfied with the performance of the different components of the buildings. Satisfaction levels were generally higher with privacy and sizes of living and sleeping areas than the availability of water and electricity in the buildings. The type, location and aesthetic appearance as well as size of main activity areas were the most predominant factors that determined satisfaction and indeed the performance of the buildings in meeting users' needs and expectations. The paper highlights critical areas where attention is needed in order to improve the performance of residential buildings and users' satisfaction with public housing projects in Nigeria.

Keywords

Building performance ; User satisfaction ; Residential buildings ; Urban areas ; Ogun State

1. Introduction

The primary purpose of buildings is to provide occupants with conducive, safe, comfortable, healthy and secured indoor environment to carry out different kinds of activities ranging from work, study, leisure and family life to social interactions. In order to achieve this purpose, buildings are designed, planned, constructed and managed based on standards and specifications established by governments, professionals and experts who are supposed to have adequate knowledge of users' needs and expectations. Studies (Kaitilla, 1993 ; Ukoha and Beamish, 1997 ; Zeiler and Boxem, 2008  ;  Meir et al ., 2009 ) have however shown that sometimes these standards and specifications do not conform to the changing needs and expectations of users; and thus users are not always satisfied with the performance of their buildings. The consequences of this are manifested in building related illness and ‘sick building syndrome' (Kian et al., 2001 ), increase in the desire for remodelling or modifications or abandonment of completed buildings (Kim et al., 2005 ) which may cause waste of energy and sometimes even damage to the building envelope components and the surrounding environment (Mitterer et al., 2012 ).

A number of reasons may be adduced on why buildings perform poorly in meeting users' needs and expectations. The chief among them is the lack of adequate knowledge of users' changing needs and preferences by architects and other professionals who design, construct and maintain buildings. This is obviously due to inadequate research on this subject. As Meir et al. (2009) rightly observed, whereas designers in other fields of human endeavour expend considerable resources in examining the actual functioning and user satisfaction with everyday services and products and refining their design accordingly, professionals in the building industry appear not to have done well in this area. In the light of the above, Kim et al. (2005) and Fatoye and Odusami (2009) suggested that one of the ways to improve the overall performance of buildings is to explore and understand users' needs, expectations and aspirations through regular performance evaluation. Therefore, building performance evaluation (BPE) is used to constantly examine the extent to which buildings are effective and efficient in meeting the needs and expectations of users (Liu, 1999 ; Kim et al ., 2005  ; van der Voordt and Maarleveld, 2006  ;  Nawawi and Khalil, 2008 ). Among other functions, BPE relates clients' goals and performance criteria set by experts to the measurable effects of buildings on the users and surrounding environment (Preiser, 1999 ). It also helps in understanding how occupants feel about their buildings, and thus provides basic information on users' needs, preferences and satisfaction (Vischer, 2002 ). Put succinctly, BPE primarily seeks to improve the quality of design, construction and management of buildings and by extension promotes sustainable built environment. Therefore, the need for BPE to be part of the research agenda of architects and other professionals in the building industry cannot be overemphasised.

In Nigeria, existing studies (Ukoha and Beamish, 1997 ; Olatubara and Fatoye, 2007 ; 〈www.rics.org/cobra〉 ; Ilesanmi, 2010 ; Ibem et al ., 2012  ;  Clement and Kayode, 2012 ) focus on the general performance of public housing in meeting occupants' needs and expectations. From these studies, it is established that the physical characteristics of residential buildings have a significant influence on occupants' satisfaction with their residential environment. This implies that the dwelling unit component of housing plays a vital role in determining the quality of residential environment in particular and the performance of housing projects in general. However, very few studies have specifically examined the performance of dwelling units (buildings) constructed in public housing schemes in meeting occupants' needs and expectations in the Nigerian context. As a result, little is known of the different dimensions occupants/users respond to in their evaluation of satisfaction with residential buildings in public housing estates in the country. It is against this background that this study assessed the performance of residential buildings in public housing estates in urban areas in Nigeria, using Ogun State as a case study. The key objectives of the study were to examine the physical characteristics of the buildings in public housing estates constructed between 2003 and 2009 in the study area; and to assess residents' satisfaction with physical, spatial, location and aesthetic and cost attributes of the buildings. It is expected that the study will bridge some gaps in literature on user satisfaction and performance of mass-constructed residential buildings; and extend our understanding of the key elements that could be manipulated to improve residents' satisfaction with, and the performance of residential buildings in public housing schemes in Nigeria.

2. User satisfaction and building performance evaluation

Satisfaction studies cut across a wide range of disciplines in the management and social sciences as well as the built environment. Generally speaking, satisfaction is a subjective evaluation of the performance of products or services in meeting the needs and expectations of users or customers (Parker and Mathews, 2001 ; Ueltschy et al ., 2007  ;  Hanif et al ., 2010 ). It compares the benefits or values users or customers derive to that expected when a product or service is consumed. In a nutshell, satisfaction is a measure of the difference between the actual and expected performance of products or services in meeting users' needs and expectations from the users' or consumers' perspective during or after a consumption experience. In fact, according to the expectancy-disconfirmation theory, which most studies on satisfaction draw on, this means that if the performance of a product or service meets users' or customers' needs and expectations, the user or customer is said to be satisfied with the product and/or service, and vice versa (Oliver, 1981  ;  Parker and Mathews, 2001 ).

Buildings like any other products are designed and constructed with lots of expectations by clients, professionals, users and the community. To clients, buildings require huge capital investment and are expected to bring returns on investment, while to professionals (e.g. architects, builders and engineers) buildings are products of their creativity and imaginative thinking. On the part of users and community, one crucial expectation is that buildings will meet their needs and aspirations by supporting their daily activities (Preiser, 1999  ;  et al ., ) and ultimately improve the aesthetic quality of the built environment. To this end, van der Voordt and Maarleveld (2006) noted that building performance evaluation (BPE) assesses the architectural, functional, technical and economic value of buildings (product evaluation) or building procurement process (process evaluation). By identifying the major weaknesses and strengths of buildings from the end users perspective (Preiser, 1999  ;  Khalil and Nawani, 2008 ), BPE contributes to improving the quality of buildings and building projects delivery process (Preiser, 1995  ;  Kim et al ., 2005 ). In addition, PBE also provides feedbacks on causes and effects of environmental issues related to buildings, and thus inform planning and management throughout the buildings life cycle (Meir et al., 2009 ) and culminating in the production of sustainable built environment (Zimring, 1988 ). In sum, BPE is important in understanding the actual performance of buildings in meeting the various expectations of the different stakeholders as compared to predicted performance, and the efficiency of building procurement process. The foregoing helps to explain that BPE can be used in assessing different aspects of buildings and building procurement process, and that the findings can serve different purposes. Depending on the rationale and objective of the research, it is clear that BPE may be intended for the formulation and implementation of government policies, or the development of new theories or research tools or the dissemination of information on the performance of building spaces and fabrics to professionals, contractors and material manufacturers in the building industry as well as to the public.

In view of the benefits highlighted in the preceding paragraph, BPE has continued to receive enormous research attention, especially in the developed countries as Meir et al. (2009) indicated. However, the existing studies on BPE focus more on office than residential buildings (see Gossauer, 2005 ; Menzies and Wherrette, 2005 ; Pfafferott et al ., 2007  ; et al .,  ;  Wagner et al ., 2007  ; Khalil and Husin, 2009) . We find in the literature that in the last few decades, much progress has been made in developing different BPE tools and approaches (see O'Sullivan et al ., 2004  ; Kim et al ., 2005  ;  〈www.internationalconference.com.mv〉 ). The main categories of approaches to BPE, which have been presented in more detail in Khair et al. (2012) , include those approaches that focus on the (i) functional suitability of buildings that is space utilisation, physical condition, safety and statutory requirements; (ii) quality assessment of buildings; (iii) serviceability of building with respect to occupants' needs and facilities provided; (iv) environmental performance in terms of indoor environmental quality, air quality, intrusion, control, appearance and lighting; (v) energy consumption and indoor air quality; (vi) user satisfaction with the design and construction of and services in building; (vii) post occupancy evaluation (POE) of technical, functional and behavioural aspect of buildings. A wide range of tools have also been developed for each of these approaches (see O'Sullivan et al ., 2004  ;  〈www.internationalconference.com.mv〉 ). Similarly, much research work has also gone into the development of building performance indicators (BPIs) in the last few decades. Hasselaar (2003) quoted in Kim et al. (2005) noted that an indicator is a sign that points to a condition to be measured, in order to evaluate specific qualities and performances. In the context of building, Preiser (1999) was of the view that BPIs should be derived from values held by individuals, groups, organisations or entire society who are stakeholders in the building industry; meaning that the criteria for measuring the performance of buildings should be derived from how people see their buildings and the importance they attach to them. This appears to be in line with the proposition by Fatoye and Odusami (2009) that at the inception of building occupation; residents build various expectations on the performance of their building, in terms of the benefits it will provide and the needs it should meet. The implication of the foregoing is that building may be perceived by same people differently at different times, or differently by different people at same time, and that the expectations of building users and the community are diverse and vary among individuals and groups. In order to capture the feelings and expectations of all categories of users in the course of evaluating the performance of buildings, Kian et al. (2001) and Kim et al. (2005) on one hand suggested the adoption of six BPIs, namely; spatial (functional) comfort, indoor air quality, visual comfort, thermal comfort, acoustic comfort and building integrity (structural and material performance). Meir et al. (2009) on the other hand argued that since BPE is based on the concept of building-users' experience, BPIs should be based on parameters related to thermal comfort such as heating, ventilation and air-conditioning; illumination and visual comfort; occupants' satisfaction and behaviour as well as physiological and psychological comfort of users. From the above, a number of inferences can be made. Firstly, BPE can follow different approaches and diverse tools and indicators can be used. Secondly, the expectations of users and the community with respects to buildings are diverse and can be measured in the terms of performance indicators. Lastly, the different approaches to BPE, tools and indicators used contribute to policy, practice and research when they focus on issues related to users' satisfaction and the sustainability of buildings and the surrounding physical and socio-economic environment.

Of the different tools for BPE identified in the literature, existing studies (e.g., Kian et al ., 2001  ; Nawawi and Khalil, 2008 ; Ilesanmi, 2010  ;  Jiboye, 2012 ) have shown that user satisfaction surveys have become very valuable tool in assessing the technical performance of buildings and understanding human attitudes, needs and expectations towards building-in-use. In fact Zagreus et al. (2004) pointed out that the views of building users are very important in investigating the performance of buildings in meeting occupants' needs and expectations. Gupta and Chandiwala (2010) also added that the evaluation of performance of residential environment has traditionally been based either on physical monitoring or user satisfaction surveys. This is principally because users give their views and/or feelings about buildings-in-use based on their experience and interactions with buildings (Vischer, 2008 ) as compared to the views of professionals who design and construct buildings and never use them (Preiser, 1995 ; Nawawi and Khalil, 2008  ;  Chohen et al ., 2010 ). It is observed that in the course of exploring residential or housing satisfaction, some researchers adopted satisfaction surveys to examine residents' satisfaction with the dwelling units in public housing estates in the different countries. For example, in Papua New Guinea and Abuja, Nigeria, Kaitilla (1993) and Ukoha and Beamish (1997) , respectively, reported that residents in public housing were dissatisfied with the building features. In contrast, Olatubara and Fatoye (2007) and Fatoye and Odusami (2009) revealed that residents in public housing in Lagos, Nigeria, were most satisfied with building design features, including the number of rooms, the ceiling height, and the location of different rooms in their dwelling units. In Malaysia, Oh (2000) cited in Mohit et al. (2010) found out that middle income households in Bandar Baru Bangi, were satisfied with the space and cost of their houses but dissatisfied with the size of kitchen and plumbing in their houses. Although these studies help to explain that occupants of mass-produced buildings in public housing estates in the different countries are satisfied or dissatisfied with the different components of their dwelling units, little is known of the different factors that determine residents' satisfaction with the buildings in public housing estates in Nigeria. Furthermore, except Fatoye and Odusami (2009) that related users' satisfaction with housing to the performance of public housing projects, the existing studies rarely associated occupants' satisfaction with the performance of residential buildings in public housing projects in the country. Hence, this study was an attempt to bridge this gap in research.

Elsewhere in Malaysia, the study by Nawawi and Khalil (2008) has established that occupants' satisfaction highly correlates with the performance of public buildings; meaning that user' satisfaction has a direct relationship with the overall performance of buildings in meeting the needs and expectations of the users. It is on this premise that the conceptual framework of this study (Figure 1 ) is based on the notion that residents' satisfaction with housing units measured as building performance indicators (BPIs) and determined by the users' characteristics and the physical, spatial, locational, service and economic attributes of buildings; is a measure of the general performance of residential buildings in meeting occupants needs and expectations as measured by Relative Performance Index (RPIa ).


Conceptual framework of the study.


Figure 1.

Conceptual framework of the study.

3. Materials and methods

This study is based on user satisfaction surveys and was targeted at occupants of residential buildings constructed in public housing estates between 2003 and 2009 in urban areas of Ogun State Southwest Nigeria. At the time of the survey (between December 2009 and February 2010), a total of 1523 housing units were identified in nine housing estates constructed for the low, middle and high-income earners. Of this number, 709 representing 46.55% of the completed housing units were occupied. In order to obtain a sample size that is representative of the aforementioned categories of housing estates, the stratified sampling technique was used to select 670 units (95%) of the occupied housing units in the following housing estates: OGD-Workers Housing Estate, Laderin; Media Village, OGD Housing Estate, Asero; Presidential Mandate Housing Estate, Olokota and Obasanjo Hill-Top GRA Housing Estate all in Abeokuta, OGD Housing Estate Itanrin, Ijebu-Ode and OPIC Housing Estate, Agbara. Others were the Ogun State Housing Corporation Housing Estate, Ota; OGD-Sparklight Housing Estate, Ibafo-Gateway City. The informants were household heads, and structured questionnaire administered by the first author and four research assistants was used in eliciting responses from the respondents during the several visits to the housing units.

The questionnaire instrument used was designed by the researchers and included questions on the personal profiles of the respondents as well as their satisfaction with 27 items related to the physical, spatial, location and aesthetic and cost attributes of their buildings as well as air quality and services in the buildings (see Appendix 1 for detail of the questionnaire). The questions were used to quantify the attitudes of the residents towards selected 27 building attributes by asking them to rank their satisfaction levels based on a five-point Likert Scale ranging from “1” for very dissatisfied, “2” for dissatisfied, “3” for neutral, “4” for satisfied to “5” for very satisfied. The questionnaire was pretested with some residents of Covenant University Staff quarters and modified to incorporate relevant suggestions made for improved research result. Of the 670 questionnaires distributed, 452 valid questionnaires representing about 67.5% of the distributed questionnaires were retrieved. In addition to the questionnaire instrument, data were also collected using the observation schedule ( see Appendix 2 ). This was used in collecting data on the objective characteristics of the buildings based on observations made on site during the field work.

Using the SPSS software, data derived from the survey were subjected to two types of analyses. The first was descriptive statistics, which generated frequencies and percentages of respondents' personal profiles, building characteristics, Individual Satisfaction Scores (ISS) and Mean Satisfaction Scores (MSS). The sum of individual respondents' scores on all the 27 building attributes is Individual Satisfaction Score (ISS).Whereas ISS is an expression of the respondents' satisfaction with all the building attributes put together, MSS is the average satisfaction score given by all respondents on each of the attributes. MSS was used to assess the degree of satisfaction with each building attribute by all the respondents. In evaluating the performance of the buildings, Relative Performance Index (RPIa ) was computed for each building attribute as the sum of the actual satisfaction score on the five point Likert scale given by all the respondents on each building attribute (ASSac ) as a proportion of the sum of maximum possible satisfaction score on the five point Likert scale that all the respondents could give on each attribute (ASSmax ). The RPIa is taken as a measure of the relative contribution or importance of each building attribute towards enhancing the activities and well-being of the residents. This is expressed mathematically as:

In interpreting the result, the maximum value of RPIa is 1.00 and the building attributes with the RPIa value closer to 1.00 are considered as having the most contribution to the performance of the buildings in meeting occupants′ needs and expectations, and vice versa. The second type of analysis carried out was factor analysis, which was used to identify the key dimensions of building components the occupants responded to in their evaluation of satisfaction with residential buildings in the housing estates.

4. Result

4.1. Personal characteristics of the respondents

The result shows that a majority (65.3%) of the respondents were male as against 43.7% who were female household heads. Of this number, most (64.8%) of the respondents were between 31years and 45 years, while those who were more than 45 years old constitute 34.5% of the respondents. Also a large number (96%) of the respondents had tertiary education with 76% of them having household size of more than three persons. Although, it was difficult to ascertain the exact income status of the respondents, the result shows that a majority (53.75%) of them were middle-income earners as against 22.8% and 23.5% who claimed to be low and high-income earners, respectively. The result also revealed that majority (80%) of the respondents had lived in the buildings between one year and three years and 64.38% were owner–occupiers as against 35.2% who were renters. It was also observed that 59.3% of the respondents were employed in the public sector and 37% were private sector employees, while very few were retirees. This result clearly shows that a majority of the respondents were middle-aged, educated, and middle-income public sector workers.

4.2. Physical characteristics of the buildings

Table 1 shows the physical characteristics of the residential buildings sampled. A close examination of the result (Table 1 ) shows that most of the buildings were single-family apartments of less than 4-bedrooms. It is also evident from Table 1 that the buildings were generally constructed with conventional building materials derived mainly from cement, timber, glass, steel and aluminium products. This result was to be expected as these are the commonly available building materials in Nigeria. Also, a majority of the buildings were found to be structurally sound, which is a confirmation of the fact that they are recently constructed buildings.

Table 1. Physical characteristics of the buildings.
Frequency'''(N'''=452) Percentage
Building type
 Single-family bungalow 243 53.8
 Semi-detached bungalow 196 43.4
 Duplex 13 2.9
Number of bedrooms
 1-bedroom 72 15.9
 2-Bedrooms 152 33.6
 3-Bedrooms 202 44.7
 4-Bedrooms 26 5.8
State of repairs
 Minor repairs 28 6.2
 Sound 424 93.8
Walling materials
 Compressed laterite bricks 19 4.2
 Sandcrete cement blocks 433 95.8
Window types
 Glazed louvres 91 20.1
 Aluminium glazed 361 79.9
External doors
 Panelled timber 179 39.6
 Steel 273 60.4
Nets on window s
 Available 445 98.5
 Not available 7 1.5
Burglary proof on window s
 Present 443 98.0
 No Burglary proof 9 2.0
Floor finish
 Cement screed 290 64.2
 Ceramic tiles 162 35.8
Ceiling materials
 Asbestos 418 92.5
 Acoustic ceiling 23 2.4
 PVC Strips 11 5.1

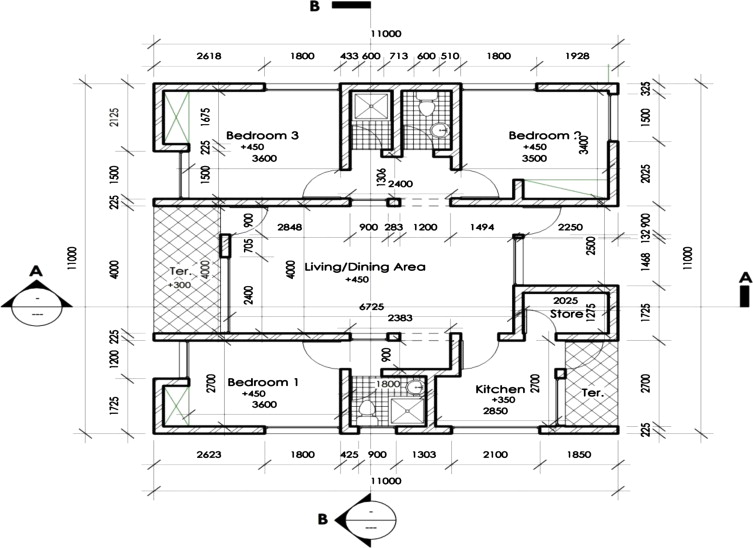
Figure 2 shows a typical floor plan of a 3-bedroom bungalow in one of the housing estates sampled. A close examination of the plan shows that the floor area of the building is 121.0 m2 and that minimum floor area for the bedrooms is approximately 12.0 m2 . It is also evident from this plan (Figure 2 ) that the living–dining area and each of the rooms have two windows, which enhances cross ventilation and natural illumination. Although a majority (55%) of the respondents indicated that the spaces provided in their current houses were adequate in meeting their needs, 45% of them would however like to have additional spaces ranging from shops, guest rooms, visitors′ toilets, laundry and outdoor cooking area. This goes to suggest that these spaces were either inadequate or not provided in these buildings, and that perhaps barring any restriction by the management of the housing estates, some of the residents who are owner–occupiers may sooner or later embark on modification or transformation of the buildings in order remediate the observed spatial deficiencies in the buildings.


Typical floor plan of a 3-bedroom bungalow in one of the housing estates.


Figure 2.

Typical floor plan of a 3-bedroom bungalow in one of the housing estates.

4.3. Users' satisfaction and performance of the buildings

With Mean Satisfaction Score (MSS) of 3.21 observed, the respondents were generally satisfied with the residential buildings. Figure 3 however reveals that 42.48% of the respondents indicated that they were satisfied, 27.87% were neither satisfied nor dissatisfied, while 29.65% said they were dissatisfied with their buildings. This result is an indication that nearly one-half of the respondents were satisfied with their dwelling units in the housing estates.


Residents′ satisfaction with the buildings.


Figure 3.

Residents′ satisfaction with the buildings.

With respect to the respondents' satisfaction with each of the 27 building attributes investigated, Table 2 shows the MSS, ASSac and RPIa for each of the attributes. It is evident from the result that of the 27 attributes investigated; the respondents were satisfied with 21. They were most satisfied with the level of privacy, followed by the sizes of bedrooms, sizes of living rooms and quality of natural lighting in the kitchens, respectively, but were least satisfied with external lighting on the buildings. The result on the performance of the building as measured by RPIa (Table 2 ) also shows that as expected, the level of privacy in the buildings has the highest RPIa value of 0.778, while external lightings on the building has the lowest RPIa value of 0.450. This suggests that these attributes contributed most and least, respectively, to the performance of the buildings sampled. Relating the result in Table 2 to the performance of the different building attributes, it can be deduced that the attributes with RPIa values of 0.704 and above contributed highly to the performance of the buildings, those with RPIa between 0.602 and 0.690 contributed moderately, while the attributes with RPIa below 0.602 contributed minimally to the performance of the buildings in meeting occupants' needs and expectations.

Table 2. Mean Satisfaction scores and relative performance indices of BPIs (in descending order of importance).
S/N Building attributes MSS ASSac RPIa
1 Privacy in the building 3.89 1759 0.778
2 Sizes of bedrooms in the building 3.78 1710 0.757
3 Sizes of living rooms 3.65 1650 0.730
4 Quality of natural lighting in kitchen 3.63 1648 0.729
5 Size of dining space 3.60 1645 0.728
6 Quality of air in living/dining space 3.52 1590 0.704
7 Quality of air in the Bedrooms 3.45 1560 0.690
8 Location of building in the housing estate 3.43 1540 0.681
9 Initial and maintenance cost of the building 3.39 1532 0.678
10 Sizes of cooking and storage spaces 3.38 1526 0.675
11 Building type 3.37 1521 0.673
12 Protection against noise 3.29 1487 0.658
13 Quality of natural lighting in bedrooms 3.28 1483 0.656
14 Quality of natural lighting in living room 3.26 1467 0.649
15 Aesthetic appearance of building 3.23 1459 0.646
16 Design of bath and toilet facilities 3.20 1448 0.641
17 Thermal comfort in the building 3.19 1443 0.638
18 Fire safety and protection 3.18 1438 0.636
19 Protection against dampness in the building 3.12 1409 0.623
20 Protection against insects and dangerous animals 3.10 1402 0.620
21 Type of materials used in the construction of building 3.01 1360 0.602
22 Security in the buildings 2.97 1341 0.593
23 Number of bedrooms in the building 2.96 1337 0.592
24 Building design in relation to occupants′ way of life 2.62 1185 0.524
25 Power supply in the building 2.40 1085 0.480
26 Water supply in the building 2.40 1085 0.480
27 External Lighting on the building 2.25 1017 0.450

4.4. Key dimensions of satisfaction evaluation by the respondents

As stated earlier, factor analysis with Principal Component and Varimax rotation methods was used to identify the key dimensions of satisfaction with the buildings which the residents responded to in the survey. The Kaiser–Meyer–Olkin measure of sampling adequacy was observed to be higher than the recommended index of 0.60. The analysis of the data resulted in the extraction of five dimensions with Eigen values greater than 1. The five dimensions accounted for 60.76% of total variance across 27 items (see Table 3 ). The first and the most important dimension was the type, location and aesthetic appearance of the buildings, explaining 32.55% of the total variance across all 27 items. The next, which explained 11.60% of the total variance, was the sizes of spaces relating to sizes of living, sleeping, cooking and storage areas. Also of strong importance was the level of illumination, thermal and visual comfort in the buildings which explained 6.04% of the total variance. Thus, it can be concluded from the analysis that three important dimensions, which the occupants responded to in the evaluation of satisfaction with their buildings in the study area, are: (i) type, location and aesthetic appearance of the buildings; (ii) sizes of main activity areas; and (iii) level of illumination, thermal and visual comfort the buildings can provide. It is important to mention here that four variables, namely; sizes of dining spaces; initial and maintenance cost of the building, building design in relation to occupants' way of life and external lighting on the buildings, were not loaded on any of the five factors extracted from the factor analysis.

Table 3. Factor analysis of 27 building attributes investigated.
Building attributes Factor loadings Eigen value % of Variance
Factor 1: type, location and aesthetic appearance 9.439 32.549
 Number of bedrooms 0.599
 Building type 0.720
 Design of bath and toilet facilities 0.688
 Type of materials used in the construction of building 0.577
 Location of building in the housing estate 0.561
 Aesthetic appearance of building 0.638
Factor 2: Sizes of internal spaces 3.363 11.596
 Sizes of living rooms 0.624
 Sizes of bedrooms in the house 0.612
 Sizes of cooking and storage spaces 0.487
Factor 3: Illumination, thermal and visual comfort 1.751 6.039
 Quality of natural lighting in bedrooms 0.503
 Natural lighting in kitchen 0.469
 Quality of air in bedrooms 0.459
 Natural lighting in living rooms 0.696
 Quality of air in living/dining spaces 0.734
 Thermal comfort in the building 0.613
 Privacy in the building 0.693
Factor 4: Security and protection 1.655 5.706
 Protection against noise pollution 0.516
 Protection against dampness in the building 0.452
 Protection against insects and dangerous animals 0.476
 Security measures in the building 0.550
 Fire safety measures in the building 0.473
Factor 5: Water and electricity supply 1.413 4.874
 Electrical services in the building 0.463
 Water supply and in the building 0.451

Total variance explained=60.764%.

5. Discussion of findings

The result of the analysis shows that the residential buildings sampled were mainly single-family bungalows of 2-bedrooms and 3-bedrooms, which of course, are the prevalent housing types in most low-density public housing schemes in Nigeria. The physical and spatial characteristics of the buildings also show that they were designed and constructed based on government approved specifications, and were structurally sound. The study reveals that the respondents were generally satisfied with the buildings; suggesting that the buildings are generally meeting their needs and expectations to a reasonable extent. This result appears to be line with findings of previous studies (Olatubara and Fatoye, 2007 ; 〈www.rics.org/cobra〉 ; Ibem and Amole, 2012  ;  Clement and Kayode, 2012 ) indicating that residents in public housing in parts of Lagos, Abeokuta, and Ondo State Southwest Nigeria, respectively, were generally satisfied with their dwelling units, but contradicts the findings by Kaitilla (1993) and Ukoha and Beamish (1997) as highlighted earlier. A number of explanations can be advanced for the observed result. Firstly, apart from the fact that the satisfaction level was observed to be higher with 21 out of the 27 items investigated, it is possible that the owner–occupier status of a large number (64.4%) of the respondents influenced their positive attitude towards the buildings. This appears to be in line with the submission by Elsinga and Hockstra (2005) that home owners are more likely to express satisfaction with their houses than renters. Secondly, since the majority of the respondents were also public sector workers and the buildings were constructed by government agencies, it is also possible that they would have considered it as lack of patriotism to rate houses constructed by their employer as unsatisfactory. However, 27.87% of the respondents who were neither satisfied nor dissatisfied with the buildings are those who would not want to discuss about their satisfaction level; hence, they were neutral in the responses. Based on the evident from this study, it can be concluded that the performance of the buildings in meeting residents' needs and expectations was acceptable from the users' perspective.

On satisfaction with the 27 attributes of the buildings, it was observed that the respondents were most satisfied with the level of privacy in the buildings; suggesting that this particular attribute performed better than others in meeting residents' needs and expectations in the buildings. This result appears to be in support of Djebarni and Al-Abed (2000) who observed that residents in low-income housing in Yemen were most satisfied with privacy in their residential environment. Next to privacy were the sizes of living and sleeping areas in the buildings, respectively, (see Table 2 ). If the sizes of living and sleeping areas of a typical 3-bedroom apartment shown in Figure 2 are common to all the buildings sampled, therefore, it can be concluded that these sizes of living and bedrooms are satisfactory to most of the residents in the housing estates sampled. The general inference that can be drawn from this result is that public housing developers in the study area are giving adequate attention to the design for privacy and spatial comfort. On the other hand, although the study did not investigate energy and water consumption in the buildings, it thus appears that the respondents were least satisfied with electrical services and water supply in the buildings as the MSS and RPIa displayed in Table 2 help to affirm this. This means that the buildings are not meeting occupants' needs for safe water and constant supply of electricity for domestic consumption, and thus the buildings can be considered as having performed poorly in these aspects. This result can be explained with the context of poor and epileptic water and electricity supply in Nigerian towns and cities; it however shows one critical area of weakness in the buildings where significant improvement is needed in future residential developments.

One interesting finding of this study that is noteworthy has to do with the observation indicating that despite the fact that most of the buildings sampled have external doors made up of steel and burglary proof windows, the respondents appear to be dissatisfied with the general security situation in their dwelling units. This is seen in Table 2 , which also shows that the level of security in the buildings contributed minimally to the performance of the buildings; suggesting that security of life and property in the housing estates is a major issue of concern to the residents. Also important is the result of the performance of the number of bedrooms in the buildings and the design of the buildings in relation to the natural way of life (convenience) of the occupants. This may be explained in the context of the result, which also shows that about 45% of the respondents wanted additional spaces for shops, outdoor cooking, laundry and guest/visitors. This result is definitely not unconnected with the fact that most of the respondents have household size of more than three persons, and the houses are mostly 2- and 3-bedroom apartments. This means that these sizes of dwelling units are inadequate in meeting the needs of families with large household size. Therefore, in terms of providing adequate sleeping areas for the residents, the buildings performed below the expectations of the respondents. In view of this result, it is expected that in the next few years, some of the buildings sampled will most likely under physical transformations or modifications, which will have adverse social and environmental implications, if urgent steps are not taken to prevent these in the housing estates.

The study also found out that, the respondents construed the concept of satisfaction with residential buildings based on five key dimensions as listed in Table 3 . The three most important dimensions being the type, location and aesthetic appearance of the buildings, sizes of main activity areas and level of illumination, thermal and visual comfort in the buildings. In order words these are the most important factors that determine satisfaction with residential buildings in public housing estates in the study area. This result is not out of place because these are the critical aspects of buildings that have significant influence on the well-being, health and productivity of occupants/users. Therefore, in order to achieve optimal user satisfaction and performance of residential buildings in meeting users' needs and expectations, architects and other professionals involved in the building industry should give adequate attention to these dimensions of building in the design, planning and construction of housing projects in Nigeria.

6. Conclusions

This study evaluated the performance of residential buildings constructed between 2003 and 2009 in public housing estates in urban areas of Ogun State Southwest Nigeria. The study revealed that the buildings were mainly single-family buildings constructed according government approved standards and were structurally sound. The respondents in the survey were generally satisfied with the buildings; suggesting that the extent to which the building are performing in meeting their needs and expectations is satisfactory. The satisfaction level with privacy in the buildings was higher than other aspects of the buildings and the most important factor determining satisfaction was the type, location and aesthetic appearance of the buildings.

Findings of this study imply that in order to enhance the performance of residential buildings in public housing estates in meeting the needs, expectations and aspirations of occupants some steps need to be taken. First, there is a need to improve the availability of water and electricity in government constructed residential buildings. Therefore, it has become imperative for architects to engage in relevant design practice that encourages the incorporation of alternative sources of energy such as solar panels into the design and construction of mass housing projects in Nigeria. Second, a significant improvement is required in designing and planning of residential buildings to reflect the way of life (convenience) and address the security concerns of the target population. Third, adequate attention should be given to the type, location and aesthetics of mass-constructed residential buildings and sizes of main activity areas, and illumination, thermal and visual comfort of the occupants of buildings in the design, planning and construction of housing projects. Lastly, there is a need for deliberate policy on the construction of large housing units for households of larger family size in public housing projects in Nigeria. Besides, the findings of this study, it is obvious that the current study is limited in a number of ways. Firstly, it is limited by focusing on the buildings constructed between 2003 and 2009, and thus the findings cannot be generalised for all residential buildings in public housing estates in the study area. Secondly, the study is also limited in scope as it dwells mainly on the design and construction aspects of the buildings. Therefore, in order to gain comprehensive knowledge of the overall performance of the buildings, further research is required on other aspects such as energy consumption in the buildings.

Acknowledgements

The authors wish to thank the Management of Covenant University, Ota, for providing the support and facilities that made this research possible. We also appreciate the two anonymous reviewers whose comments contributed significantly in improving the final version of this paper.

Appendix 1. The Questionnaire Survey

CU/DA/FW09/QN0

Dear Respondent,

This questionnaire is designed to elicit responses on issues relating to the public housing programmes in Ogun State between 2003 and 2009. It is mainly an instrument for gathering data for an on-going research on public housing. All information provided will be treated confidentially, and used purely for academic purpose.

Thanks for providing responses to the questions

Please tick (√) or fill as appropriate

Section A: Basic Information

Name of Housing Estate………………………………..

  • Sex (i) Male ( ) (ii) Female ( )
  • How old are you?

(i) 31–45 years ( ) (ii) 46–59 years ( ) (iii) 60 years and above ( )

  • Marital status: (i) Single ( ) (ii) Divorced ( ) (iii) Married ( ) (iv) Widowed ( )
  • What is the highest level of your educational attainment? (i) First School Leaving Certificate ( ) (ii) WASC O′Level ( ) (iii) OND ( ) (iv) NCE ( ) (v) HND ( ) (vi) Bachelor Degree ( ) (vii) Masters Degree ( ) (viii) PhD ( ) (ix) Others----------------
  • What is your occupation? ---------------
  • What is the range of your average monthly income? (i)
Full-size image (3 K)

38,000-

Full-size image (3 K)

44,000 ( ) (iv)

Full-size image (3 K)

45–144,000 ( ) (vi) Above

Full-size image (3 K)

145,000 ( )

  • How long have you been living in this Housing Estate? (i) Less than 1year ( ) (ii) 1–3years ( ) (iii) 4–5 years ( ) (iv) More than 5 years ( )

Section B: Building Attributes

  • How many bed rooms do you have in your apartment? (i) 1 ( ) (ii) 2 ( ) (iii) 3 ( ) (iv) 4 ( ) (v) More than 5 bed rooms ( ).
  • How many persons live in this housing unit?

(i) 1 ( ) (ii) 2 ( ) (iii) 3 ( ) (iv) 4 ( ) (v) More than4 ( ).

  • Where is your kitchen located?

(i) Within the building ( ) (ii) Detached from the building ( ) (iii) No Kitchen ( ).

  • Indentify as many spaces as you require that are not provided in your apartment?

(i) Space for Shop ( ) (ii) Storage spaces ( ) (iii) Visitors′ toilet ( ) (iv) Guest room ( ) (v) Laundry ( ) (vi) Outdoor cooking space ( ) (ix) Others, please specify------------

  • What is the type of tenure of the house you are occupying?

(i) Privately rented ( ) (ii) Owner occupied ( ) (iv) Official quarters ( ) (v) Free Occupation ( )

  • In your opinion, the cost of acquiring or renting this house can best be described as (i) Highly Unaffordable ( ) (ii) Unaffordable ( ) (iii) Affordable ( ) (iv) Highly affordable ( )
  • What is the predominant source of water supply in your apartment?

(i) Water vendors ( ) (ii) Wells outside the building ( ) (iii) Borehole within the estate ( ) (iv) Public water supply system ( ) (v) Others, Please specify-------

  • What is the main source of power supply in your apartment?

(i) Personal Power Generating sets ( ) (ii) Power Generating Plant in the estate ( ) (iii) Solar Panels ( ) (iii) Public Power supply ( ) (iv) None ( ) (v) others, please specify---------

Section C: Satisfaction With Building Attributes

How satisfied or dissatisfied are you with the house and housing estate where you live in terms of the following? Please tick (√)

S/N Building Attributes Very Dissatisfied Dissatisfied Neutral Satisfied Very Dissatisfied
1 Building Type
2 Number of bedrooms in the Building
3 Sizes of Bedrooms in the Building
4 Sizes of Living Rooms
5 Sizes of Cooking and Storage Spaces
6 Size of Dining Space
7 Quality of air in Living/Dining space
8 Quality of air in the Bedrooms
9 Quality of Natural Lighting in Kitchen
10 Privacy in the building
11 Quality of Natural Lighting in Bedrooms
12 Quality of Natural Lighting in Living room
13 Thermal comfort in the Building
14 Location of building in the housing estate
15 Initial and Maintenance cost of the building
16 Protection against Noise in the Building
17 Aesthetic appearance of Building
18 Design of Bath and Toilet facilities
19 Fire safety and protection
20 Protection against dampness in the Building
21 Protection against insects and dangerous animals
22 Security in the Buildings
23 Type of materials used in the construction of the Building
24 Design of building in relation to occupants′ way of life
25 Power supply in the Building
26 Water supply in the Building
27 External Lighting on the Building

Appendix 2. Observation Schedule

Name and Location of Housing Estate: ---------------

House Number: -----------

  • Housing Typology (i) Single-Family Bungalow [ ] (ii) Semi detached Bungalow [ ] (iii) Detached stored [ ] (iv) Semi-detached stored building (Block of flats) [ ] (v) Duplex [ ] (vi) Others-------
  • Walling material of your house?

(i) Sun dried burnt bricks [ ] (ii) Compressed Stabilized Laterite [ ] (iii) Sancerre Cement Blocks [ ] (iv) Others----------

  • Wall finishing (i) Cement sand plastering [ ] (ii) Painted [ ] (iii) Others--------------
  • Type of windows used in the house (i) Timber [ ] (ii) Glazed louvers [ ] (iii) glazed aluminium [ ]
  • The type doors used in the house (i) Plywood flushed [ ] (ii) Panelled timber [ ] (iii) Aluminium Glazed [ ] (iv) Panelled Steel [ ] (v) others------------
  • Presence of mosquitoes net on windows (i) Yes [ ] (ii) No [ ]
  • Burglary proof on windows and external doors (i) Yes [ ] (ii) No [ ]
  • Type of floor finish (i) Cement screed [ ] (ii) PVC Tiles [ ] (iii) Ceramic Tiles [ ] (iv) Terrazzo [ ] (v) Marble [ ] (vi) Others---------
  • Ceiling Material(s) (i) Asbestos [ ] (ii) Mineral Fibre [ ] (iii) Acoustic ceiling [ ] (iv) PVC strips [ ] (v) Polished timber [ ] (vi) Plaster of Plaster (POP) [ ]
  • Type of Roofing material (i) Galvanised iron [ ] (ii) Asbestos [ ] (iii) Aluminium long span [ ] (iv) Villa tiles [ ] (v) others, specify--------
  • State of repair of the building?

(i) Dilapidated [ ] (ii) Major repairs [ ] (iii) Minor repairs [ ] (iv) Sound [ ]

  • Mode of discharge of waste water from the buildings (i) Central Waste treatment facilities [ ] (ii) Septic tank/soak away pits [ ] (iii) Outside drains [ ] (iv) Surface discharge [ ]
  • The layout of the housing estate (i) Crowded [ ] (ii) Haphazard [ ] (iii) Spacious [ ] (iii) properly planned [ ]
  • Perimeter fencing (i) Nonexistent [ ] (ii) Major repairs [ ] (iii) Minor repairs [ ] (iv) Sound [ ]
  • Kiosks for retail shops (i) Nonexistent [ ] (ii) Present [ ]
  • Security post at entrance(s) to the estate (i) Nonexistent [ ] (ii) Present [ ]
  • General state of cleanliness of the estate (i) Very poor [ ] (ii) poor [ ] (iii) Fair [ ] (iv) Good [ ] (v) Very good [ ] (vi) Excellent [ ]

References

  1. Chohen et al., 2010 A.H. Chohen, A.I. Che-Ani, Z. Memon, M.M Tahir, N.A.G. Abdullah, N.H. Ishak; Development of user′s sensitivity index for design faults in low rise urban housing, a study of development metropolitan city; American Journal of Scientific Research, 12 (2010) (2010), pp. 113–124
  2. Clement and Kayode, 2012 O.I. Clement, O. Kayode; Public housing provision and user satisfaction in Ondo State, Nigeria; British Journal of Arts and Social Sciences, 8 (1) (2012), pp. 103–111
  3. et al., Davara, Y., Meir, I. A., Schwartz, M., 2006. Architectural design and IEQ in an office complex, healthy buildings: creating a healthy environment for people. In: de Oliveira Fernandes, E. et al. (eds.), Proceedings of the International Conference on Healthy Building, Lisbon, vol. III, pp. 77–81.
  4. Djebarni and Al-Abed, 2000 R. Djebarni, A. Al-Abed; Satisfaction level with neighbourhoods in low-income public housing in Yemen; Property Management, 18 (4) (2000), pp. 230–242
  5. Elsinga and Hockstra, 2005 M. Elsinga, J. Hockstra; Homeownership and housing, satisfaction; Journal of Housing and the Built Environment, 20 (2005), pp. 301–324
  6. 〈www.rics.org/cobra〉 Fatoye, E.O., Odusami, K.T., 2009. Occupants′ satisfaction approach to housing performance evaluation: the case of Nigeria. In: Proceedings of the RICS COBRA Research Conference, University of Cape Town, 10–11 September, 2009. Available from: 〈http://www.rics.org/cobra〉 . (accessed 22.02.10).
  7. Gossauer, 2005 E.A.W. Gossauer; User Satisfaction at Workspaces: A Study in 12 Office Buildings in Germany; CISBAT, Lausanne, Switzerland (2005)
  8. 〈http://nceub.org.uk〉 Gupta, R., Chandiwala, S., 2010. Integrating an occupant-centred building performance evaluation approach to achieve whole-house and low-carbon retrofitting of UK homes. In: Proceedings of the Conference on Adapting to Change: New Thinking on Comfort Cumberland Lodge, Windsor, UK, 9–11 April, 2010. London: Network for Comfort and Energy Use in Buildings. Available from: 〈http://nceub.org.uk〉 . (accessed 10.09.12).
  9. Hanif et al., 2010 M. Hanif, S. Hafeez, A. Riaz; Factors affecting customer satisfaction; International Research Journal of Finance and Economics, 60 (2010), pp. 44–52
  10. et al., Hasselaar, E., 2003. Health performance indicators of housing. In: Proceedings of Healthy Buildings, ISIAQ, (cited in Kim et al., 2005).
  11. Ibem et al., 2012 E.O. Ibem, E.B. Aduwo, O. Uwakonye; Adequacy of incremental construction strategy for housing low-income urban residents in Ogun State, Nigeria; Built Environment Project and Asset Management, 2 (2) (2012), pp. 182–194
  12. Ibem and Amole, 2012 Ibem, E.O., Amole, D. Residential satisfaction in public core housing in Abeokuta, Ogun State, Nigeria. Journal of Social Research, 10.1007/s11205-012-0111-z , in press.
  13. Ilesanmi, 2010 A.O. Ilesanmi; Post-occupancy evaluation and residents′ satisfaction with public housing in Lagos, Nigeria; Journal of Building Appraisal, 6 (2010), pp. 153–169
  14. Jiboye, 2012 A.D. Jiboye; Post-occupancy evaluation of residential satisfaction in Lagos, Nigeria: feedback for residential improvement; Frontiers of Architectural Research, 1 (2012), pp. 236–243
  15. Kaitilla, 1993 S. Kaitilla; Satisfaction with public housing in Papua New Guinea: the case of West Taraka housing scheme; Environment and Behavior, 25 (4) (1993), pp. 514–545
  16. 〈www.internationalconference.com.mv〉 Khair, N., Ali, H.M., Wilson, A.J., Juhari, N.H., 2012. Physical environment for post occupancy evaluation in public low-cost housing. In: Proceedings of the Third International Conference on Business and Economic Research (ICBER). Available from: 〈www.internationalconference.com.mv〉 . (accessed 12.11.12).
  17. Khalil and Husin, 2009 N. Khalil, H.N. Husin; Post Occupancy Evaluation towards Indoor Environment Improvement in Malaysias Office Buildings; Journal of Sustainable Development,, 2 (1) (2009), pp. 186–191
  18. Khalil and Nawani, 2008 N. Khalil, A.H. Nawani; Performance analysis of government and public buildings via post occupancy evaluation; Asian Social Science, 4 (9) (2008), pp. 103–112
  19. Kian et al., 2001 P.S. Kian, H. Feriadi, W. Sulistio, K.C. Seng; A case study on total building performance evaluation of an “intelligent” office building in Singapore; Dimensi Teknik Sipil, 3 (1) (2001), pp. 9–15
  20. Kim et al., 2005 S. Kim, I. Yang, M. Yeo, K. Kim; Development of a housing performance evaluation model for multi-family residential building in Korea; Building and Environment, 40 (2005) (2005), pp. 1103–1116
  21. Liu, 1999 A.M.M. Liu; Residential satisfaction in housing estates: a Hong Kong perspective; Automation in Construction, 8 (1999), pp. 511–524
  22. Meir et al., 2009 I.A. Meir, Y. Garb, D. Jiao, A. Cicelsky; Post-occupancy evaluation: an inevitable step toward sustainability; Advances In Building Energy Research, 3 (2009), pp. 189–220
  23. Menzies and Wherrette, 2005 G.F. Menzies, J.R. Wherrette; Windows in the workplace: examining issues of environmental sustainability and occupant comfort in the selection of multi-glazed windows; Energy and Buildings, 37 (11) (2005), pp. 623–630
  24. Mitterer et al., 2012 C. Mitterer, H.M. Kunzel, S. Herkel, A. Holm; Optimizing energy efficiency and occupant comfort with climate specific design of the building; Frontiers of Architectural Research, 1 (2012), pp. 229–235
  25. Mohit et al., 2010 M.A Mohit, M. Ibrahim, Y.R. Rashid; Assessment of residential satisfaction in newly designed public low-cost housing in Kuala Lumpur, Malaysia; Habitat International, 34 (2010), pp. 18–27
  26. et al., Morhayim, L., Meir, I., 2008. Survey of an office and laboratory university building: an unhealthy building case study. In: Proceedings of the Indoor Air 2008 Conference, Copenhagen, Denmark, 17–22 August.
  27. Nawawi and Khalil, 2008 A.H. Nawawi, N. Khalil; Post-occupancy evaluation correlated with building occupants′ satisfaction: an approach to performance evaluation of government and public buildings; Journal of Building Appraisal, 4 (2008), pp. 59–69
  28. et al., Oh, L.S., 2000. Housing satisfaction of middle income households in Bandar Baru Bangi, Selangor. Dissertation, Universiti Pertanian Malaysia, (Cited in Mohit et al. (2010)).
  29. Olatubara and Fatoye, 2007 C.O. Olatubara, E.O. Fatoye; Evaluation of the satisfaction of occupants of the Abesan public low-cost housing estate in Lagos State, Nigeria; The Nigerian Journal of Economic and Social Studies, 49 (1) (2007), pp. 5–9
  30. Oliver, 1981 R.L Oliver; Measurement and evaluation of satisfaction process in retail setting; Journal of Retailing, 57 (1981), pp. 25–48
  31. O'Sullivan et al., 2004 D.T.J. O'Sullivan, M.M. Keane, D. Kelliher, R.J. Hitchoock; Improving building operation by tracking performance metrics throughout the Building Lifecycle (BLC); Energy and Building, 36 (2004) (2004), pp. 1075–1090
  32. Parker and Mathews, 2001 C. Parker, B.P. Mathews; Customer satisfaction: contrasting academic and consumers′ interpretations; Marketing Intelligence & Planning, 19 (1) (2001), pp. 38–46
  33. Pfafferott et al., 2007 J. Pfafferott, S. Herkel, D. Kalz, A. Zeuschner; Comparison of low-energy office Buildings in summer using different thermal comfort criteria; Energy and Buildings, 39 (7) (2007), pp. 750–757
  34. Preiser, 1995 W.F.E. Preiser; Post-occupancy evaluation: how to make Buildings work better; Facilities, 13 (11) (1995), pp. 19–28
  35. Preiser, 1999 W.F.E. Preiser; Built environment evaluation: conceptual basis, benefits and uses; J.M. Stein, K.F. Spreckelmeyer (Eds.), Classic Readings in Architecture, WCB/McGraw-Hill, Boston (1999)
  36. Ueltschy et al., 2007 L.C. Ueltschy, M. Laroche, A. Eggert, U. Bindl; Service quality and satisfaction: an international comparison of professional services perceptions; Journal of Services Marketing, 21 (6) (2007), pp. 410–423
  37. Ukoha and Beamish, 1997 O.M. Ukoha, J.O. Beamish; Assessment of residents′ satisfaction with public housing in Abuja, Nigeria; Habitat International, 21 (4) (1997), pp. 445–460
  38. van der Voordt and Maarleveld, 2006 T.J.M. van der Voordt, M. Maarleveld; Performance of office buildings from a user′s perspective; Ambiente Construido, 6 (3) (2006), pp. 7–20
  39. et al., Vischer, J.C., 2002. Post occupancy evaluation: a multi-faced tool for building improvement. Federal Facilities Council, Chapter 3, pp. 23–34.
  40. Vischer, 2008 J.C. Vischer; Towards a user-centred theory of the built environment; Building Research & Information, 36 (3) (2008), pp. 231–240
  41. Wagner et al., 2007 A. Wagner, E. Gossauer, C. Moosmann, T. Gropp, R. Leonhart; Thermal comfort and workplace occupant satisfaction: results of field studies in German low energy office buildings; Energy and Buildings, 39 (7) (2007), pp. 758–769
  42. Zagreus et al., 2004 L. Zagreus, C. Huizenga, E. Arens, D. Lehrer; Listening to the occupants: a web-based indoor environmental quality survey; Indoor Air, 14 (Suppl. 8) (2004), pp. 65–74
  43. Zeiler and Boxem, 2008 Zeiler, W., Boxem, G., 2008. Sustainable schools: better than traditional schools? In: Proceedings of the Indoor Air 2008 Conference, Copenhagen, Denmark, 17–22 August, Paper ID: 10.
  44. Zimring, 1988 Zimring, C., 1988. Post-occupancy evaluation and implicit theories of organisational decision-making. In: Proceedings of the 19th Annual Conference of the Environmental Design Research Association, California, pp. 277–280.
Back to Top

Document information

Published on 12/05/17
Submitted on 12/05/17

Licence: Other

Document Score

0

Views 261
Recommendations 0

Share this document

claim authorship

Are you one of the authors of this document?