Abstract

Palazzo Valentini, a historical site of Rome׳s Provincial Administration, is located at the heart of the city. The building was purchased in 1827 by Vincenzo Valentini, a banker and consul general of the Prussian Crown. In 1939, with the outbreak of World War II, a fully self-contained, air-raid shelter was built under the courtyard, with an exit tunnel heading onto the Trajan׳s Forum. Archaeological investigations started in 2005 in view of a simple rehabilitation work of the underground level. As work progressed, the sample-plots brought to light new archaeological findings: relics of a huge temple and what remained of two residential houses with thermal baths. We therefore designed an exhibition space with glass surfaces to allow visitors to appreciate the findings while following a path through historical ages: from the 16th-century courtyard to the underground Roman domus (the sumptuous houses of senators and dignitaries of the Roman Empire), with private baths, to the remains of a Roman temple, and all the way to the Trajan׳s Column pedestal by way of the air-raid shelter. Virtual reconstructions, graphic effects, and movies are the means used to revive the hypothetical original appearance of the environments and the daily life of that epoch in order to help us build a prototype of an on-site museum of the third millennium.

Keywords

Museum ; Domus ; Thermal baths ; Archaeological investigations ; Historical path ; Barrier-free accessibility ; Multimedia exhibition

1. Introduction

This essay shows the museum routes of Palazzo Valentini׳s Domus.

The project has been conducted by the Province of Rome since 2005.

The paper consists of three sections: Section 2 presents the urban historical context, Section 3 illustrates the archaeological structures that emerged during works, and Section 4 explicates the criteria and modality of museum design and preparation.

2. Palazzo Valentini: location and historical development

Palazzo Valentini, the historical site of Rome׳s Provincial Administration and its Prefecture, is located at the heart of the city, rising on a trapezoidal block located on top of one of Rome׳s most interesting archaeological sites (Figure 1  ;  Figure 2 ).


Palazzo Valentini: main facades on piazza SS. Apostoli (left) and the Trajan׳s ...


Figure 1.

Palazzo Valentini: main facades on piazza SS. Apostoli (left) and the Trajan׳s Forum (right).


Palazzo Valentini: the urban context.


Figure 2.

Palazzo Valentini: the urban context.

The Palazzo is located in an area that, during Imperial times, was occupied by the northern part of the Trajan׳s Forum. The Trajan׳s Column, the only standing remnant of that age, still bears witness today to the original height of the saddle between the Quirinal and the Capitol Hills, removed in ancient times to make room for the huge complex of the Trajan׳s Forum. After the fall of the Roman Empire from the 5th to the 12th century, the area underwent a process of decay and neglect; subjected to floods, among other decays, the area earned the epithet “pantano” (marsh).

In the early 16th century, the area facing Piazza dei SS. Apostoli was reclaimed and became a sought-after location for Roman noble families who wished to build their sumptuous palaces.

The Palazzo, commissioned by Cardinal Michele Bonelli (1541–1598), a nephew of Pope Pius V Ghislieri (1566–1572), was erected on the site of a previous building of the early 16th century. After renovation works and additions, during the 17th century, the building was leased to the Ruspoli princes and hosted musical events of great importance. From 1707 to 1708, the building was home to the German composer G. F. Haendel. In 1752, the building was sold to Cardinal Giuseppe Spinelli, nephew and executor of Cardinal Giuseppe Renato Imperiali, who renovated and decorated the rooms and built a large public library at the ground floor (Figure 3 ).


Palazzo Valentini: A. Tempesta, Veduta di Roma, 1593.


Figure 3.

Palazzo Valentini: A. Tempesta, Veduta di Roma , 1593.

In 1827, the building was purchased by Cavalier Vincenzo Valentini, a banker and consul general of the Prussian crown. Valentini promoted a number of restoration works and embellishments and completed the side of the building facing the Trajan׳s Column, raising a partly independent building designed by the architect Filippo Navone (1800). Vincenzo Valentini׳s sons, Gioacchino and Giovan Domenico, completed the wing of the building facing via di S. Eufemia between 1861 and 1865 and commissioned the architect Luigi Gabet for the execution of two separate buildings: an independent “palazzetto” and an indistinct extension to the main structure.

In 1875–1876, the ample space of the main courtyard was closed up by a new wing of the building parallel to the main facade, designed by the same Gabet. The body of the building, with the Assembly Hall of Rome׳s Provincial Council, was erected between 1873 and 1876, to complete the alley along the opposite side of via di San Bernardo, via de’ Fornari. This structure was also designed by Gabet, but the task was commissioned by Rome׳s Provincial Deputation, who shortly before purchased the building in 1873 to host its headquarters.

In the winter of 1939, with the outbreak of World War II, a fully self-contained air-raid shelter was built beneath the courtyard, with an exit tunnel onto the Trajan׳s Forum and two entrances from the Palazzo—one for the employees of the Provincial Council and the other for those of the Prefecture.

3. Archaeological investigations1

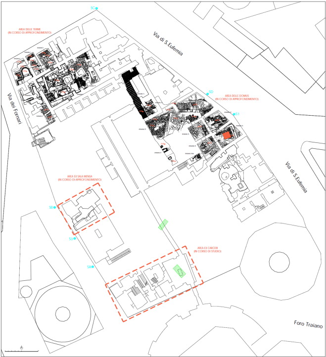
The works started in 2005 in the cellars of the building and were originally intended to guide a simple rehabilitation of underground spaces, finally freed from waste and archival materials, in order to reuse them as multi-functional exhibition areas. A certain number of essays were also planned, aiming to investigate the archaeological situation of these environments (Figure 4 ).


Palazzo Valentini: plan of the cellars with the archaeological remains.


Figure 4.

Palazzo Valentini: plan of the cellars with the archaeological remains.

As work progressed, however, the sample-plots were extended, both in terms of number and depth, following the archaeological findings that progressively came to light.

The archaeological investigations at the underground level represented the first phase of a complicated project, which was connected to the study of the building׳s history and architecture, to its conservation, and to the redevelopment of the area. The excavations were particularly complicated because of the presence of the Palazzo above and of very deep earth fillings. Moreover, the groundwater outcrops—today as in antiquity—at about 6 m below the street level. The result is a very humid microclimate despite the air-conditioning system that is planned for the site and is always kept in function. We must regularly control the situation with the help of colleagues from the Department of Chemistry of “Sapienza” University of Rome, who are also studying the correct lighting to reduce or prevent the growth of microorganisms.

Up until now, excavations have been conducted in four different areas: in the rooms under the Consiliar Hall, along vicolo di S. Bernardo on the west side of the Palazzo, in the cellars under the southern aisle, the so-called “ex-carceri” (the former dungeons), in the rooms along via di S. Eufemia on the eastern side, and in the so-called “Piccole Terme” (small baths) at the northwest corner. In the first two areas, archaeological findings suggest the presence of a public building; in the others, the relics clearly belong to ancient Roman domus (upper-class one-family houses).

In the area along vicolo di S. Bernardo, limited excavations have revealed the presence of walls in opus latericium (made of brick craftwork) dating back to the beginning of Hadrian׳s time, probably related to the vaulted cellars of a public building, whose function is still unsure, probably the Temple of the Deified Emperors, Traianus and Plotina , also built during the rule of Hadrian (Figure 5 ).


Palazzo Valentini, area along vicolo di S. Bernardo: Roman imperial walls in ...


Figure 5.

Palazzo Valentini, area along vicolo di S. Bernardo: Roman imperial walls in opus latericium.

In the area facing piazza Traiana, the excavations have revealed a strong platform in opus caementicium , which carries large blocks in travertine and compact tuff and certainly belonging to the same building and probably corresponding to the staircase of the Temple. On this platform, two fragments of huge Egyptian grey granite columns (originally 15 m tall) have been found and probably belong to the same Temple of Traianus and Plotina Divi (Figure 6 ).


Palazzo Valentini, area on Piazza Traiana: platform in opus caementicium and ...


Figure 6.

Palazzo Valentini, area on Piazza Traiana: platform in opus caementicium and grey granite column of the Temple of Traianus and Plotina Divi.

In the areas along via di S. Eufemia and of the so-called “Piccole Terme,” the archaeological excavations have disclosed a part of an upper-class residential district of the mid and late Empire, located “in the shade” of the Trajan׳s Forum.

In the first area, five rooms were excavated between 2005 and 2007 on the east side of the Palazzo, showing a series of historical layers dated between the first and the fifth century A.D. The most important relics belong to two rich domus of the mid and late Empire, here called Domus A and B, on which we will concentrate our attention. The historical layers can be summarized as follows.

During the first phase, between the late first and the beginning of the second century, a huge concrete foundation 3.5 m deep was built for an open-air space, probably a public square, which was at a higher level than the nearest area in the east (Figure 7 ).Three travertine stairs enabled to reach the square, which would complete the northern part of the Trajan׳s Forum and separate it from the surrounding areas, probably also waterproofing the area because groundwater outcrops today as in the ancient times. In this phase, at the beginning of Hadrian׳s time or slightly later, a large complex (so called Domus A) was built at the east end of the square. Two rooms are preserved, presumably the entrance side, but originally, this domus extended both southward and eastward. The distribution found by the archaeological excavations depicts the late antique phase when this was surely a domus . Then, during the second building phase that occurred around the mid-second century A.D., the open-air square was paved with basalt stones (Figure 8 ) that made the area look more as a public terrace. These stones were covered and partially removed during the third phase, at the end of the second century A.D., when the area became private and was transformed into a garden belonging to another domus , the so-called Domus B. Two rooms were discovered, but the house was certainly much larger, and it extended westward and northward. To Domus B belonged two perimeter walls in opus latericium forming a corner, one of which has two discharge arches that probably let adduction and waste water pipes through. Two brick stamps allow the dating of the walls around the end of the second century A.D., under emperors Commodus or Septimius Severus.


Palazzo Valentini, area along via di S. Eufemia, domus: concrete foundation ...


Figure 7.

Palazzo Valentini, area along via di S. Eufemia, domus : concrete foundation (left), statues of togati (middle), walls and mosaic pavement of Domus A (right).


Palazzo Valentini, area along via di S. Eufemia, the domus: basalto slabs.


Figure 8.

Palazzo Valentini, area along via di S. Eufemia, the domus : basalto slabs.

The interior design and decoration of the first phase, consisting of traces of painted plaster, remain unknown. Two statues of “togati” (noble Romans dressed with a “toga”) (Figure 7 ) dated between the end of the second and the early third century A.D. could belong to one of the two domus or, less probably, to a public dedication in the external area: they were found reused as a sort of medieval precinct to the area east of Domus B.

During the fourth phase, at the first half of the fourth century, the two buildings were completely reorganized and appeared as a large domus with rich internal decoration. In Domus A, the floors were raised 50 cm and paved with mosaics, but only two rooms were preserved. One of them was probably a long peristyle with marble veneered walls and paved with a black and white mosaic: four bases in opus latericium for columns or pilasters are still preserved.

Northward, the peristyle allowed passage to another room, probably a cubiculum (sleeping room) or a small triclinium (dining room) (Figure 9 ). The threshold was made of a large Proconnesian marble slab with holes for the door hinges. The room, with a part of the walls still covered with painted plaster, is rectangular and not very large. However, the floor is covered by a complicated and fine mosaic made of coloured marbles and white flint tesserae (very small tiles), with a geometric carpet and a decorated border.


Palazzo Valentini, area along via di S. Eufemia, Domus A: triclinium with mosaic ...


Figure 9.

Palazzo Valentini, area along via di S. Eufemia, Domus A: triclinium with mosaic pavement.

In Domus B, the room at the northeast became, or was such ever since, a very large staircase, covered with a barrel vaulted ceiling, of which the shutter remains. It was composed by two flights with two intermediate landings, and the floor was originally covered with marbles, almost all lost. The second room became an apsidal aula (Figure 10 ): the inner volumes are set up in a new form with the addition of two opposite apses along the north and south walls, probably with statues. Another structure along the northern wall is only partially preserved, but we assume that it was a northward passage to an open air space, probably a garden surrounded by a porticus . Pavement and walls were covered with marbles that provided the room with importance and the aspect of a boardroom. Here, the opus sectile (artistic technique to pave surfaces with cut-out pieces of marble and stone) pavement was made of square marble fragments placed in a geometric composition of squares; the ample variety of colours depended on the variety of the marbles, which all came from Mediterranean countries. The colours, especially white, grey, light blue, and pink, are put side by side in one or more flanked tiles to create the typical late opus sectile chromatic effect.


Palazzo Valentini, area along via di S. Eufemia, Domus B, apsidal aula with opus ...


Figure 10.

Palazzo Valentini, area along via di S. Eufemia, Domus B, apsidal aula with opus sectile pavement.

The late chronology of the pavement, dated at the first half of the fourth century, may be proposed as a part of the same construction phase as the coating of the walls with so-called incrustationes (coating of vertical surfaces made of marble fragments) (Figure 11 ). The surviving decoration shows the typical partition in three parts: from the bottom, a base, an intermediate area with rectangular panels divided by lesenae (vertical elements) rendered with different coloured marbles, and an upper band with red and grey lozenges on a white background, divided by rectangular grey slabs. The upper zone of the walls was also covered by marbles that are now lost, but the decoration with smaller rectangular panels and lesenae may be recomposed on the base of the traces on the mortar. In the northwest entrance, two panels can be found in white marble with a lozenge motif within a frame and a central rota , which are now lost. On the east side, the decoration ends with a lesena made of “occhio di pavone,” a precious stone.


Palazzo Valentini, area along via di S. Eufemia, Domus B: incrustationes on a ...


Figure 11.

Palazzo Valentini, area along via di S. Eufemia, Domus B: incrustationes on a wall of the apsidal aula.

The relics on via di S. Eufemia may be connected, in the same residential context, with the archaeological findings in the northern area, known as the “Piccole Terme.” A restricted excavation in two rooms was already achieved by Rome׳s Archaelogical Superintendence between 1980 and 1981. The heated sector of this area of a private thermal complex was found: the dimensions are limited, but the area was a part of a domus that can be dated, in its first phase, at the beginning of the third century A.D. Here, the praefurnium (baths׳ oven), the calidarium (hot bath) with two basins, probably a laconicum (a dry sweating room contiguous to the calidarium ), and one or two tepidaria (lukewarm baths) were identified; floors and walls were covered with marbles, traces of which remain in situ.

During our excavation, between 2007 and 2009, another part of the thermal complex was found containing a large frigidarium (cold bath), a related room, and an access room to the heated sector that, 1000 years later, became a container for kitchen wastes of the Renaissance Palazzo; this part was extended eastward, in the direction of Domus B, and was presumably a part of a contemporary residential building with similar decorations, dated at the same building phases. The frigidarium belongs to the first half of the fourth century and is contemporary to the renovation of the apsidal “aula” and to the staircase ( Figure 13  ;  Figure 16 ). It is a rectangular room, measuring 9 m×8 m, probably covered with a barrel vault with a “pasta vitrea” (glass tiles) mosaic decoration, with a large basin for cold water on the southern side and at least two other basins on the northern side. The pavement was made of big rectangular marble slabs that are partially preserved. Walls and basins were covered with coloured marbles, almost all lost. Eastward was another room, which was recently discovered: the room, whose purpose is uncertain, was contiguous to the frigidarium , and a large passage with a colonnade of two columns is found. This room was large as the frigidarium , but shorter, and had a bench on the east side covered with marble slabs. A pavement in opus sectile with the same pattern of the aula in Domus B can also be found; marble slabs covered the walls, but they are also all lost.

The ceiling was flat and supported by wooden beams with painted lacunari (coffered ceiling) with bands and vegetation patterns; upon the pavement, we found a mass of collapsed plaster fragments and parts of the burned beams. The existence of a second floor above this room is assured because fragments and entire panels of the pavement have collapsed on top of the plaster fragments and of the burned beams. The second floor pavement, a very precious example of opus sectile , has been almost entirely recomposed and partially exposed at the level where it presumably stood in ancient times (Figure 12 ).2 Many traces of fire, large faults, and evidence of the collapse of the lower floor pavement suggest that the building, which was already abandoned and plundered, collapsed during an earthquake. In the collapse, seven or eight amphorae were crushed under the ceiling: they can provide an approximate date between the end of the fifth and the beginning of the sixth century A.D, shortly before the aula of Domus B also collapsed and burned. Domus A, instead, was abandoned at the beginning of the seventh century.


Palazzo Valentini, Piccole Terme: reconstructed opus sectile pavement of the ...


Figure 12.

Palazzo Valentini, Piccole Terme: reconstructed opus sectile pavement of the second floor.

We ignore the names of the owners and the identity of the tenants of the two domus . However, according to the location at the centre of the Urbs (city) near the Imperial Fora and according to their dimensions (over 1000 m2 ) and plan, typical of important late Roman domus , we may suppose that they were senators or dignitaries of the imperial court.

4. Conservation works and the design for the display of archaeological findings

The astonishing archaeological findings achieved during the excavations led to substantial changes in the original project. We abandoned the idea of planning an exhibition area where the items will be displayed and instead decided to establish in situ a museum of artefacts and environments based on the archaeological and historical structures found there. We implemented measures to make all the archaeological findings accessible, usable, and understandable to the greatest number of people possible.

Therefore, we built no longer a mere container for temporary exhibitions but, rather, a museum of the very true “essence” of the city of Rome, that joins harmoniously and incorporates structures from different centuries and with different functions. The result is a space that allows the visitor to appreciate artefacts and structures while following a path through various historical ages: from the 16th-century courtyard to an ancient Roman domus with private thermal baths and to the pedestal of the Trajan׳s Column by way of a Second World War air-raid shelter.

The main aim of our new project was to meet safety and accessibility requirements without creating architectural barriers, as well as to enhance and protect the historical, artistic, and archaeological features of the area. Therefore, the guidelines we followed were to carefully conserve these environments of rare historical and cultural value and, at the same time, to make them accessible and comprehensible to non-specialists in the field; to introduce elements that are immediately recognizable as contemporary with the use of a simple, straightforward design that harmonizes with the surrounding environment; to add non-invasive and easily removable elements and structures and to exploit transparent surfaces to allow visitors to appreciate the spaces and structures found during the archaeological excavations.

The arrangement of the visitors׳ path raised considerable problems because of conflicting requirements, such as providing full access to the archaeological sites, including mosaic opus sectile floors, and spaces at different levels, while ensuring an adequate micro-climate in the underground rooms with the presence of visitors; allowing access for handicapped users; and making the path easily intelligible while maintaining the essential atmospheres that may have been experienced by those who originally frequented the areas.

Therefore, the arrangement of the site has required careful design in terms of footbridges, lighting, and micro-climate management. A flexible lighting system was selected to allow the normal use of the environment and a clear reading of the archaeological remains and of the ancient structures. A complex climate-management system was used to ensure that the temperature and humidity levels should be adequate both for the conservation of the archaeological relics and exhibits and for the comfort of visitors, with the flow of people through the environment taken into consideration. Suspended footbridges have been implemented with the use of glass paneling and steel frames to allow full accessibility and appreciation of the environments. This undertaking also allowed us to connect various levels in a safe and easy way.

5. Footbridges

The surface of the footbridges, and even the railings, are made of glass to minimize visual impact. The floors are implemented with the use of “Blindovis” glass consisting of three laminated layers of 12 mm glass panels, joined by two sheets of perfectly transparent film in polyvinyl butyral plastic (Figure 14 ). Transparent parapets are implemented with the use of tempered laminated “Visarm” glass, composed of two 8 mm×8 mm glass plates, joined by the same plastic film.

The structural support of the footbridges is made of steel frames that are held firm by hanging brackets connected to the walls and supporting rods attached to the roof structures of the environments themselves. Everything is finished with mica-based flame-retardant charcoal grey paint similar to cast-iron. The solutions used and the thickness and colour selected aim to minimize the visual impact of the structures (Figure 13 , Figure 14  ;  Figure 15 ).


Palazzo Valentini, Piccole Terme: glass floor in the frigidarium.


Figure 13.

Palazzo Valentini, Piccole Terme: glass floor in the frigidarium.


Palazzo Valentini, domus: suspended footbridges with transparent floors and ...


Figure 14.

Palazzo Valentini, domus: suspended footbridges with transparent floors and parapets.


Palazzo Valentini, archaeological exhibition area.


Figure 15.

Palazzo Valentini, archaeological exhibition area.

6. Illumination

Lighting was designed to preserve and maximize the visibility of the ancient structures, with emphasis on the architectural and archaeological remains. The specific lighting design, developed with the almost total absence of light coming from above and with targeted illumination of the excavations and most significant finds, creates a specific attractive effect, both for scholars and for common visitors.

7. Air conditioning

The air conditioning system maintains optimal thermal conditions, humidity levels, air movement, and air quality as required for the wellness of visitors and for the conservation of the archaeological structures. Air in the system is drawn outside, filtered and treated in a special unit, and then distributed through an airflow network. The air recovered from the rooms is passed through a heat-recovery unit before it is expelled again outside of the building.

8. Multimedia exhibition

The task of making the museum accessible and easily comprehensible to non-experts in seven different languages was assigned to a team led by Piero Angela, Paco Lanciano, and the MIZAR Srl company. The idea was to put technology at the service of archaeological remains in order to enhance it and replace it with a new technique, which is implemented here for the first time in Italy. Another goal was to moderate the presence of technology and of virtual images in order not to spoil the “magic” of the place and instead enhance it and attempt to protect the exhibits from technological invasion as much as possible.

Virtual reconstructions, graphic effects, and movies are used to revive the hypothetical original appearance of the environments (Figure 16  ;  Figure 17 ) and the daily life that took place here to evoke the same feelings felt by the original inhabitants. This undertaking uses special software to manage dozens of projectors, electronically programmed lights, sound effects, and 3D reconstructions.


Palazzo Valentini, Piccole Terme: the area of the frigidarium.


Figure 16.

Palazzo Valentini, Piccole Terme: the area of the frigidarium.


Palazzo Valentini, Piccole Terme: multimedia exhibition of the frigidarium.


Figure 17.

Palazzo Valentini, Piccole Terme: multimedia exhibition of the frigidarium.

Thanks to the continuous review of the project, with decisions made on the basis of feedback and additional changes needed, we have implemented a prototype of a third-millennium museum. The Museum of Palazzo Valentini offers a highly innovative space to the public—not an 18th-century picture gallery nor a private patron׳s collection—but, rather, a place where visitors may re-live and appreciate the environment, structures, and reality of the ancient times.

Basing on the positive comments and feedback we received from the constant flow of visitors, we can confidently say that our objectives have been fully and successfully achieved.

References

  1. Amendolea and Indrio, 2005 Amendolea, B., Indrio L., 2005. Palazzo Valentini, Storia di un Palazzo e di una Istituzione, Rome.
  2. Acconci et al., 2005 Acconci, A., Baldassarri, P., Nuzzo, M., Tommasi, F.M., 2005. Profilo storico, artistico e archeologico di Palazzo Valentini. In: Del Signore R. (Ed.), La Provincia Capitale. Storia di una Istituzione e dei suoi Presidenti, Rome, pp. 153–198.
  3. Baldassarri, 2008 Baldassarri, P., 2008. Indagini archeologiche a Palazzo Valentini. La campagna 2005–2007. In: Del Signore, R. (Ed.), Palazzo Valentini. L’area tra antichità ed età moderna: scoperte archeologiche e progetti di valorizzazione, Rome, pp. 29–80.
  4. Baldassarri, 2008, 2009 Baldassarri, P., 2008, 2009. Indagini archeologiche a Palazzo Valentini: domus di età imperiale ai margini del Foro Traiano. Rendiconti della Pontificia Accademia, LXXXI, pp. 343–384.
  5. Baldassarri, 2011 Baldassarri, P., 2011. Archaeological Excavations at Palazzo Valentini: a residential area in the shade of the Trajan’s Forum. In: Sahin M. (Ed.), XIth International Colloquium on Ancient Mosaics, Bursa October 16th–20th 2009, Istanbul, pp. 43–67.
  6. Baldassarri et al., 2012 Baldassarri, P., Lumacone, A., Salvatori, L., 2012. Nuove indagini archeologiche a Palazzo Valentini. Il tempio dei divi Traiano e Plotina. Forma Urbis, XVII, 5, pp. 45–52.
  7. Baldassarri, 2013 Baldassarri, P., 2013. Alla ricerca del tempio perduto: indagini archeologiche a Palazzo Valentini e il Templum Divi Traiani et Divae Plotinae . Archeologia Classica, LIV, pp. 371–481.
  8. Cicconi, 2008 Cicconi, M., 2008. La ‘Fabbrica’ di Palazzo Bonelli-Valentini, residenza cardinalizia del Cinquecento. Il punto di partenza. In: Del Signore R. (Ed.), Palazzo Valentini L’area tra antichità ed età moderna: scoperte archeologiche e progetti di valorizzazione, Rome, pp. 1–27.
  9. Cola, 2012 Cola, M.C., 2012. Palazzo Valentini a Roma. La committenza Zambeccari, Boncompagni, Bonelli tra Cinquecento e Settecento, Rome.
  10. Farina, 1985 Farina, G., 1985. Palazzo Valentini, Rome.

Notes

1. The project, which involves a team of archaeologists, art historians, and architects, most of which are officers of the Provincial Administration, is directed and coordinated by Roberto Del Signore, Manager of Service 2, Department II, Province of Rome, with the contribution of architects Rosella Russo and Luisa Napoli. The archaeological excavations have been directed by Eugenio La Rocca and Paola Baldassarri in collaboration with the “Cooperativa Parsifal.”

2. The reconstruction of the panels is due to the firm “Società Capitolium conservazione restauro snc.”

Back to Top

Document information

Published on 12/05/17
Submitted on 12/05/17

Licence: Other

Document Score

0

Views 43
Recommendations 0

Share this document

claim authorship

Are you one of the authors of this document?