Engineering, production and life-cycle management for the complete construction of large-length FIBRE-based SHIPs

García-Espinosa 2016b 4423 FibreShip H-06.jpg

Objectives

Europe is today a major player in the global shipbuilding and shipping industry. In fact, Europe has a leading position in value terms of civilian and naval ships built, classifies the largest proportion of new constructions, and continues to control about a 40% of the world’s fleet.

In particular, the European shipbuilding industry remains in a leading position thanks to a clear determination to offer high added-value products, including a great development of lightweight constructions. Today, Fibre-Reinforced Polymers (FRP) materials are extensively used for building lightweight hull structures of vessels with length up to about 50 meters. In fact, today most of the leisure crafts and sailing yachts, passenger and car ferries, patrol and rescue vessels, and naval ships below 50 meters length are built in FRP materials.

The main benefits resulting in the application of FRP in shipbuilding are clear. On one side, a significant weight reduction (around 30%) implies a substantial fuel saving (aligned with Directive 2012/33/EU), increase in cargo capacity and reduction of greenhouse gas emissions. On the other, FRP are immune to corrosion that results in a better life cycle performance and reduced maintenance costs (Directive 2013/1257/EU). Furthermore, those materials can offer additional advantages like an increase in ship stability and a reduction of underwater noise (Directive 2008/56/EU).


However, the use of those materials for ships above 50 meters in length is limited to secondary structures and components2. One of the main reasons for this limitation is the lack of design guidelines allowing to prove that the use of those materials does not adversely affect the safety level of the vessel, as required by the Convention for the Safety of Life at Sea. Actually, different technology gaps have to be filled to demonstrate the full feasibility of using FRP materials in large-length ships; different functional characteristics of the new materials, coatings and components, such as durability or fire-resistance, have to be extensively tested to be certified for marine application; innovative design procedures and guidelines have to be elaborated; specific joint solutions have to be developed; new production procedures have to be developed and implemented; different computational tools that can assist in the design and functional safety assessment must be developed and validated; and finally, demonstrators have to be built and evaluated by an extensive technical and experimental assessment.

Furthermore, the market calls for cost efficient solutions, and therefore the solutions to be developed must prove significantly lower life cycle costs in order to ensure market uptake.

The main objective of the FIBRESHIP project is to enable the building of the complete hull and superstructure of large-length seagoing and inland ships in FRP materials by overcoming the above mentioned challenges. In order to achieve this objective, the project will develop, qualify and audit innovative FRP materials for marine applications, elaborate new design and production guidelines and procedures, generate efficient production and inspection methodologies, and develop new validated software analysis tools. Clear performance indicators will be designed and applied in the evaluation of the different solutions developed for three targeted vessels categories. Finally, the different technologies generated in FIBRESHIP will be first validated and then demonstrated by using advanced simulation techniques and experimental testing on real-scale structures.

(2) With the exception of a few series of naval ships such as the Swedish Navy Visby stealth corvette (73 m overall length, 2004), the Royal Navy’s Hunt class mine counter measures vessels (60 m, 1978-1988) or the Sandown/Racecourse class single role mine hunter (50 m long, 1989-2001).

Relation to the work programme

Europe’s leading position in the global shipbuilding and shipping industry has been affirmed thanks to a determined commitment to research, technology innovation and delivery of high value-added products. New FRP materials and construction processes can provide a step change in vessel efficiency, both in terms of energy use and maintenance costs and therefore can offer better solutions for high end vessels.

In order to meet the challenges posed by the project’s goals, FIBRESHIP will address all the following aspects:

  • Evaluate the functional characteristics of existing and innovative FRP, including bio-based materials and engineered solutions such as embedded sensors, for their massive application in large-length shipbuilding.
  • Categorize FRP materials, coatings and joint solutions based on their performance/cost ratio and audit them to obtain classification societies certificate for marine application.
  • Design, develop, validate and demonstrate advanced engineering and analysis simulation solutions for coupled fluid-structure and fire-dynamics analysis.
  • Develop the engineering of the three different FRP-based ship types based on the specifications generated as a result of a market analysis carried out by the ship-owners involved in the project.
  • Develop optimized production techniques, for full application of FRP materials in large-length ships.
  • Analyze and quantitatively monitor the cost effectiveness and commercial potential of the solutions developed in FIBRESHIP for large-length FRP-based ships (individual stakeholders and European industry business plans).
  • Generate new design and production guidelines for the three FRP-based vessel concepts to be developed in the project.
  • Develop optimized production, maintenance and dismantling solutions enabling to achieve a significant reduction in the life cycle costs.
  • Demonstrate the generated solutions supported by an extensive small and large-scale testing campaign, advanced simulations of the whole ship structure in realistic operational environments, and finally building a real-scale ship block
  • Widely disseminate the results of the project, in particular among entities responsible of the regulatory frameworks.

FIBRESHIP proposal is in full agreement with the specific challenge described in the topic MG-2.2-2016. A summary showing the correspondence of the project tasks with the topic scope is presented in table 1.

Quotation of the topic description Relation to FIBRESHIP
Conception, production and use of advanced composites FIBRESHIP aims to develop innovative engineered FRP materials to enable their massive use in large-length shipbuilding. These materials will have to provide excellent mechanical properties, fire-safety and improved life-cycle performance. Different materials, including bio-based will be considered for different structural elements in order to improve their performance/cost ratio.
Multi-materials construction and joining / bonding The development of the vessel concepts will include the search for the most appropriate design, construction and production principles. Special attention will be paid to the evaluation of different joint techniques, including mechanical and bonded, screwed/bolted or glued. Different multi-material structural solutions, including mixed metallic-FRP structures will be analyzed.
Comprehensive performance analysis […] for new advanced materials and entire constructions Extensive small, large and real-scale experiments campaign will be conducted to characterize and assess the selected materials, joints, solutions and procedures. The experimental tests will be complemented with advanced simulations of the whole ship structure in realistic operational environments.
Simulation for new advanced materials and entire constructions Advanced computational analysis solutions will be developed for assessing fire and lifespan strength performance of FRP large scale ships. These will be validated against small, large real-scale measurements and finally demonstrated on three new design projects.
Full life cycle costs analysis The cost effectiveness of the innovative solutions to be developed within FIBRESHIP will be quantitatively monitored during the project, and validated during the demonstration phase with the building of a large ship block. For this purpose, clear performance indicators will be designed.

Furthermore, a business plan will be developed, identifying the opportunities for the different actors of the shipbuilding and shipping market.

Technology transfer from other transport applications for lightweight materials Developments and state of the art technologies used in aeronautics and other engineering fields will be used in FIBRESHIP. Among other aspects, the project will look into materials, production processes, joining techniques and numerical tools for the analysis.
Assessing risks The classification societies involved in the project will lead the development of design and production guidelines supported by different risk and safety assessment studies (FSA), and validated in different demonstration tasks.
Enhancing fire resistance properties and thermal and noise insulation qualities. New intumescent coatings, which can offer more than twice the protection than commercial solutions, will be evaluated for marine applications. Moreover, FIBRESHIP will analyze the on board noise insulation and underwater noise improvements by the extensive use of FRP materials.
Table 1. Summary of the correspondence of the tasks included in FIBRESHIP with the topic scope.

Concept and methodology

FIBRESHIP’s methodology is based on eight pillars that are summarized in the following. The different tasks are distributed along ten different workpackages (WP) whose interconnections are shown in Figure 1.

Draft García-Espinosa 766294518-image2.png
Figure 1. FIBRESHIP interconnections among the workpackages.


Conception, production and use of advanced composites (WP2)

The conception and identification of new fibre-based materials and joining solutions for its use in large-length ships is one of the key aspects of the project. In fact, FIBRESHIP will research the functional characteristics of fibre-based materials newly introduced in aerospace, automotive and wind energy industry, as well as several solutions resulting of recently completed RTD projects (see Table 4), to assess their potential for being used in large-length shipbuilding. A comprehensive list of candidates will be built and is summarized in Table 2. The corresponding composite manufacturing and processing methods (resin infusion, compression moulding/hot press forming, automated tape placement, autoclaving) would need to be evaluated in parallel. Furthermore, recycled materials and other alternatives will also be considered to evaluate lower costs options.

The different material alternatives will be systematically analysed and evaluated against a multi-dimensional criteria combining consideration of their engineering, economic, and environmental properties. This analysis will include the definition of the material space of application that will allow preselecting the optimal candidates based on their performance, availability and adequacy for the structure considered (hull, main & secondary reinforcements, superstructure etc). The down-selection of the most appropriate combinations of materials would need to take into account the required processing and manufacturing method (scalability, compatibility with existing techniques at the shipyards) as well as total cost and part/component size (more flexibility would be expected with regards to the selection of the manufacturing/processing method for smaller parts to be bonded/joined onto bigger components). A wide range of manufacturing methods will be considered initially, ranging from liquid-resin-infusion to automated tape placement.

Candidates Current applications Detailed list
Thermosetting Resin Systems Aerospace and others Epoxy resins; Polyesters; Urethane acrylates; Phenolic resins; Bismaleimides; Benzoxazines
Thermoplastic Resin Systems Aerospace and others Polyether ether ketone; Polyamides; Polyolefins
Bio-resin System Generic Bio-epoxies; Bio-unsaturated polyesters; Biomass based
Reinforcing Fibre Generic

(marine and others)

Carbon, Glass and Basalt fibres; Bio-fibres; Recycled polymer fibres; Combinations; Various fibre architecture
Table 2. Summary of the specific fibre-based materials that will be targeted.

One of the critical aspects of the project is to build and assess actual components and structures that can fulfil IMO/SOLAS fire requirements. With this purpose, different resin systems and reinforcement materials for fire resistant applications will be assessed. Among them, Benzoxazine resin systems which are candidates for high-temperature aerospace applications and have desirable fire, smoke and toxicity properties. Moreover, innovative coatings developed in previous research projects by some of the partners will be considered, including the JetstopTM solution and a new intumescent coating based on kaolin nano-clay particles (KCICF). All these solutions will be evaluated in order to find which ones are more appropriate for the different applications.

The preselected materials will be categorized for the different applications and audited for their future certification for marine application developing a “Catalogue of applicable materials and joining techniques recommended by classification societies”. For this purpose an extensive small-scale experiments campaign, assessed by the classification societies involved in the project, will be conducted to characterize the functional properties of the materials. The campaign will include three sets of experiments, in order to obtain a comprehensive picture of the material behaviour:

  • Mechanical characterization tests: Static tests of composite laminates with various lay-ups to determine key mechanical properties under different loading conditions: tension, compression, shear, fracture toughness, flexural strength and stiffness.
  • Fatigue performance tests: to determine the degradation of the mechanical properties, i.e. stiffness, and strength, under cyclic loading. The loss of stiffness due to the accumulation of fatigue damage will be determined via obtaining the quasi-static stiffness at discrete cycle intervals. Sections for microscopic examination will be obtained after discrete number of loading cycles to evaluate damage build-up due to matrix cracking, delamination, fibre-resin debonding, fibre breakage etc.
  • Fire performance tests: Different laboratory-scale experiments will be carried out to characterize the material properties related to solid-phase pyrolysis and gas-phase combustion. These will provide comprehensive information on the material’s thermal degradation behaviour, smoke production and toxicity, and propensity to contribute to a fire.

FIBRESHIP will also evaluate different conventional and innovative joining techniques already used in the aerospace sector, including resistive implant welding, hybrid metal-to-composite joints through COMELD, and adaptations of more conventional bolting and adhesive bonding techniques. As in the previous case, after an initial analysis of the different joining techniques available, those identified as the most suitable will be subject to an experimental campaign to assess their performance and to be audited to obtain their future certification for shipbuilding application.

As a conclusion of these activities, the classification societies involved in this project will prepare and deliver a document with the recommendations for the use of composite materials in large length ships construction. These will include the definition of the different composites materials that could be used for different applications in ship building. They will also include the specifications and properties required for those materials, with special emphasis on fire protection. These recommendations will also define the joining techniques, and their specifications, required for the different components.

Market and business analysis (WP1 & WP8)

To ensure the industrial relevance of the outcome of the work to be carried out in FIBRESHIP, the research and development activities will be prioritized by focusing on three vessels categories that have been targeted as the most promising for the final project market orientation, both from a commercial and technical standpoint. The pre-selected categories are (see Figure 2) lightweight commercial vessels; passenger transportation and leisure; and, special services.

Draft García-Espinosa 766294518-image3.png
Figure 2. Vessels categories targeted in FIBRESHIP.

An initial task of the project will be to develop an in-depth shipping market analysis in order to identify potential niches markets and validate the selection of categories. First, current market situation will be presented in terms of 4P marketing mix and SWOT matrices, integrating the point of view of all the stakeholders in one holistic presentation. Then, factors that make market susceptible to ex-ante regulation, as well as competition and barriers to entry and to the development of competition will be identified. The product differentiation advantages will be explicitly defined and quantified, and finally the shipping market exploitation roadmap will be clearly identified and monitored.

As conclusion of the shipping market analysis, the market interest on large-length FRP-based ships will be formalized to define the applicability area as well as the usability time window. This will be formalized by assessing the three vessels categories and generating detailed specifications for three ships concepts -each belonging to one of the categories- that will be used to develop three detailed ship designs as test bench for design and production, as well as definition of class societies’ guidelines. Finally, individual business plans for industrial partners involved in the project as well as a market forecast for the entire European industry will be developed for business impact quantification and general policy recommendations.

In order to ensure the industrial relevance of the project, the cost effectiveness and commercial potential of the large length FRP-based vessels compared to standard steel-based solutions will be analyzed and quantitatively monitored during the project. Furthermore, a business plan covering the different phases of the life cycle, from design, shipbuilding and operation to the final dismantling of the vessel, and identifying the business opportunities for the different actors of the chain, will be developed.

Development of design guidelines for large-length FRP vessels (WP4)

FIBRESHIP is based on the premise that FRP-based designs with suitable risk control and with the use of cutting-edge materials and coatings can allow to comply with the strictest safety regulations. However, the lack of design rules and guidelines to prove that the use of FRP materials do not adversely affect the safety level of the vessel has been identified as a main limiting factor to widen the use of those materials in large-length ships. FIBRESHIP aims to overcome this challenge by developing project design guidelines for functional design and certification for three vessel concepts to be generated in the project. The classification societies engaged in the project will lead this task that will be supported by formal risk and safety assessment studies and finally validated through different demonstration tasks.

The methodology conceived to achieve the proposed goals, start with the development of the design of three vessels -corresponding to each one of the targeted categories- and the assessment of the technical implications resulting from the fact that they are completely built in fibre-based materials. Three representatives of the targeted categories have been tentatively selected; a container ship, a Ro-Pax ferry and a research fishing vessel (see Figure 2). Each design will be done by one of the engineering partners (TSI, COMPASSIS and SOERMAR) supported by one of the classification societies involved in the project (BV, LLOYDS or RINA). In order to foster cooperation and promote interoperability among the three ship design projects, as well as to ensure a uniform regulatory criterion, a Design and Engineering Coordination Team will be created, teaming up the expertise of the engineering partners and the classification societies.

The development of the ship projects will follow the standard iterative engineering methodology (see Figure 3) based on the experience of the engineering companies and classification societies involved in the project. However, the methodology of the design tasks will implement the necessary procedures for the correct technical risk management, including continuous monitoring of the identified technical risks, advance risk identification, definition of proactive measures, etc. The different design tasks will be developed to meet the level of technical detail required for the purposes of the project.

Draft García-Espinosa 766294518-image4.png
Figure 3. Methodology of the activities regarding the ship design and the development of design guidelines.

The development of the vessel concepts design will include the search for the most appropriate design, construction and production principles. Special attention will be paid to the adequate use of different joint techniques selected. Moreover, different multi-material structural solutions, as wells as alternative arrangements -such as multi-hulls- will also be evaluated.

In addition, and following classification societies’ recommendations, specific computational analyses will be carried out in order to assess the global structure behaviour during a fire event (collapse study). This will be developed using both ISO standard fire curves and realistic fire descriptions. In the case of the fishing research vessel, a minimum underwater signature is crucial for their operation. Therefore, a dedicated underwater noise prediction analysis will be carried out, aiming to demonstrate the environmental impact benefits arising from building this kind of vessels in FRP materials.

The experience acquired in the development of the three ship design projects will be the starting point for the elaboration of the design guidelines for FRP-based large-length vessels. The classification societies involved in FIBRESHIP will lead this task aiming at laying the foundations for the generation of the future class rules for classifications of this kind of vessels. These project design guidelines will cover all the required aspects for classification, paying special attention to the critical aspects of this type of buildings, including the structural design, the fire performance and the production aspects. In this regards, the elaboration of the guidelines will consider the existing regulations related to the use of FRP materials on board, including mandatory and voluntary national and international requirements. Moreover, this task will feed from the previous experience of the Class Societies involved in the project gained in previous European RTD projects.

The design guidelines will be completed with the knowledge generated in the rest of the activities of FIBRESHIP to cover production and life cycle management aspects.

Simulation and analysis tools for materials and entire constructions (WP3)

FRP-structures of large-length ships need to be able to withstand extreme loads and environmental conditions with minimum maintenance. Furthermore, large vessels are classified according to their expected life, and therefore it is essential to have advanced simulation tools that are able to assess and optimize the life-time performance of FRP-based ship structures. FIBRESHIP will overcome this challenge by delivering a rational, robust and consistent computational analysis solution for assessing the structural integrity of large-length FRP ships during their life time. The computational solution will be based on innovative computational tools that couple existing advanced time-domain seakeeping solvers with state-of-the-art multi-scale FEA formulations to predict the mechanical response of FRP structures.

Furthermore, fire behaviour of the designed vessel concepts in realistic fire scenarios will be studied using a coupled CFD and FEA fire simulation tool, whose framework was developed in a recently completed EU project (see Table 4) and demonstrated in the context of classification tests. An existing thermo-mechanical analysis tool will be extended for the requirements of the project. The temperature dependence of the elastic properties and the yield limit of the FRP materials will be taken into account, as well as the thermal degradation of the mechanical properties determined in the different laboratory tests to be carried out. The influence of the temperature on the nonlinear behaviour of the FRP material will included in the model by means of a thermal damage variable.

The final aim of this tool is to be able to analyse the collapse of the structure, including buckling. For this purpose, the classification societies involved in the project will generate specific guidelines for this kind of studies, including the standardization of the fire environments to be simulated. The scenarios will be described using information obtained from direct simulation using Fire Dynamics Simulator (FDS) (a well known CFD model of fire-driven flow co-developed by VTT) and standard fire curves (ISO 834, ASTM E-119, etc.).

Finally, FIBRESHIP will generate a computational solution for structural health monitoring of the vessel, aiming at optimizing the maintenance management and inspection tasks. This solution will combine the use of embedded sensors for real-time monitoring of the structure condition, with the application of Operational Modal Analysis to generate structural damage maps. This solution will be based on the so-called Inverse Finite Element Model Updating (iFEM) method. This model essentially combines a FEA model based on the zig-zag theory with monitoring information of the vibration modes in different selected areas of the ship, and an optimization tool aimed to find a damage pattern that makes fit the vibration models of the computational model with the measured information. Lessons learnt from past and on-going projects such as the FP7 Project VIBRATION (http://fp7-vibration.eu/) investigating Structural Health Monitoring of composite aero structures based on the vibration characteristics of the structure during operation shall be incorporated in FIBRESHIP.

Demonstration of the full feasibility of the developed solutions (WP2 & WP7)

Effectively, one of the main goals of the project is to demonstrate the different developed technologies to facilitate the market uptake of the solutions. For this purpose, FIBRESHIP will carry out an extensive testing, validation and demonstration plan of the technology developed in the project, following a three-tier approach, including: extensive small-scale characterization experiments; representative large-scale validation experiments in simulated operational conditions; and real scale validation and demonstration, including the building and testing of one representative large ship block.

The different testing, validation and demonstration activities will be verified by the classification societies involved in the project and designed to accomplish a comprehensive performance analysis and assessment of the materials, tools, solutions, procedures and guidelines to be developed in the project.

The testing, validation and demonstration plan designed in FIBRESHIP, jointly with the specific goals of the different activities is described in the following.

Small scale characterization tests (tier 1). A comprehensive experimental campaign will be conducted to characterize the mechanical and fire performance of the pre-selected material and joints solutions. This information will be also used to tune up and validate the computational material models. Specifically, the designed campaign will include the following tests:

(1) Mechanical characterization tests of laminates will be carried out in a laboratory for determination of tensile, compression, shear and impact properties, toughness and flexural strength and stiffness of the selected material candidates. Additional tests will be carried out to evaluate the effect of environmental variables in the mechanical properties of the materials.
(2) Mechanical characterization tests of laminates including edgewise compression, impact performance, skin-core delamination resistance and flexural strength and stiffness.
(3) Fire performance tests of materials aiming to provide a comprehensive picture of the material’s thermal degradation behaviour, smoke production and toxicity, and if they are likely to catch fire. Additional tests will be used to determine basic thermal properties such as specific heat capacities and thermal conductivities, and the temperature-dependency of the key mechanical properties.
(4) Assessment and characterization of joining techniques. Different small-scale tests will be conducted to determine the strength of adhesive bonded joints. Afterwards mid-scale specimens (500-700 mm) will be manufactured to evaluate other pre-selected joint alternatives. Tests will be conducted under static, impact, and fatigue loading. Creep effects will be also analyzed. Strain measures will be obtained with conventional strain gauges, and the joint performance will be also evaluated with non-contact systems such as Digital Image Correlation (DIC).
(5) Fatigue performance of the materials and assemblies. The loss of stiffness due to the accumulation of fatigue damage will be determined via obtaining the quasi-static stiffness at discrete cycle intervals. Sections for microscopic examination will be obtained after discrete number of loading cycles to evaluate damage build-up due to matrix cracking, delamination, fibre-resin debonding, etc.
Task / description
2.1 – Material selection
:* Production of test samples using different techniques (ULIM).
* Testing of test samples to determine their mechanical properties (ULIM).
2.3 – Fatigue performance
:* Manufacturing composite laminates/sandwich panels and extraction of composite test specimens for the validation of numerical models (ULIM).
* Mechanical characterization of specimens under fatigue loading conditions and various environmental conditions (saturated, elevated temperature, sub zero temperature, etc.) for the validation of numerical models (ULIM).
:* Knowledge about manufacturing with composites (TUCO).
* Production of composite panels for fatigue testing (TUCO).
2.4 – Fire resistance
:* Tests for initial screening of material candidates (VTT).
** Thermogravimetric analysis made on 6-12 different materials
** Cone calorimeter made on 2-4 materials
* Tests for each material selected for FIBRESHIP applications. (VTT)
:* Down-selecting appropriate resin systems and reinforcement materials for fire resistant applications (ULIM).
* Processing high temperature resin systems such as phenolic and benzoxazine resin systems which are candidiates for high-temperature aerospace applications. Similar to phenolic resin systems, benzoxazines have desirable fire, smoke and toxicity properties (ULIM).
* Manufacturing composite substrates using a wide variety of state-of-the-art manufacturing equipment (liquid-resin-infusion, hot-press, automated tape placement etc) (ULIM).
* Designing and manufacturing sandwich panel structures for test specimen extraction (ULIM).
:* Knowledge about manufacturing with composites (TUCO).
* Production of composite panels for fire testing (TUCO).
2.5 – Joining techniques
:* Manufacturing composite-composite joints and composite-metallic joints for the validation of numerical models (ULIM).
* Manufacturing composite substrates using a wide variety of state-of-the-art manufacturing equipment (liquid-resin-infusion, hot-press, automated tape placement etc.) (ULIM).
* Designing and assembling bolted test specimen samples (single-lap-double bolt etc.) (ULIM).
* Designing and manufacturing bonded joints (co-cured, secondary bonded etc.) (ULIM).
* Mechanically characterising bonded and bolted composite joints under static/fatigue loading conditions (strength and stiffness) and various environmental conditions (saturation, temperature) (ULIM).
* Transferring knowledge from the aerospace sector to the marine sector (ULIM).
:* Knowledge about manufacturing with composites (TUCO).
* Production of different combinations of joints for testing of techniques (TUCO).
:* Concept down-selection and development (Define process parameters to be investigated) (TWI).
* Preparation of Surfisculpt plates (EB/LASER), including selection of surface modification & pretreatment parameters (TWI).
* Manufacture Comeld plates; joining the metal and composite to make the coupons (using resin infusion or similar process) (TWI).
* Test SLS coupons (Static, ASTM D1002-12) (TWI).
* Data analysis and process review. Evaluation of failure modes and effect of joining parameters on strength and elongation at failure of coupons(TWI).
* Connection types to be manufactured: Deck panel (Coupons + Mid-Scale) and Vertical Bulk head (Coupons + Mid-Scale) (TWI).
* Coupon testing: 5 Replicate joints for each joint type (combination of surface protrusion for example, height, shape, density and arrangement pattern) (TWI).
* From Coupon testing, 5 most promising parameters for each composite type will progress to mid-scale testing (TWI).
* Mid-Scale testing: Essentially, a larger version of the Coupon testing (500mm x 500mm lap joint, for example). Fatigue testing to be carried out (TWI).
7.1 – Large scale tests
:* Manufacturing panels and specimens for fire testing.
* Manufacturing panels for iFEM testing. (TUCO).
:* Testing of validation scale specimens (TWI).
* Three scale specimens: Deck plate; Vertical bulk head; Joint b/w the two. (TWI).
* Support validation process. (TWI).
:* Resin systems and reinforcement materials testing & validation for fire resistant applications (ULIM).
:* Validation tests described in task 7.1 (VTT).
Table 3. Summary of the small and large scale tests to be carried out in FIBRESHIP.

Large-size validation tests (tier 2). Different representative large-scale experiments in simulated operational conditions will be carried out aiming at validating technologies and computational solutions developed in FIBRESHIP. The experimental tests in this phase will include:

(1) Fire and heat performance: large-scale fire-resistance tests of chosen components will be carried out according to the IMO FTP Code Part 11 using a vertical furnace. These tests consider simultaneous thermal and mechanical loading, and their purpose is to demonstrate that relevant fire safety objectives and functional requirements of the selected materials are met. In addition, a custom test will be specially designed for validating the developed models’ capability to predict flame spread, and validating the fire-structural analysis. Furthermore, the surface flammability and smoke and toxicity of surface materials will be validated according to the IMO FTP Code Part 5 and Part 2, respectively.
(2) Collapse tests: Large-scale fire-resistance test will be carried out according to the IMO FTP Code Part 11. These tests consider simultaneous thermal and mechanical loading, and their purpose is to demonstrate that relevant fire safety objectives and functional requirements are met.
(3) Health monitoring tests: The health monitoring technique -combining iFEM with embedded sensors- to be implemented in FIBRESHIP, will be validated using information obtained from a experimental campaign on bulkheads –about 1m x 1m- with different delamination patterns.
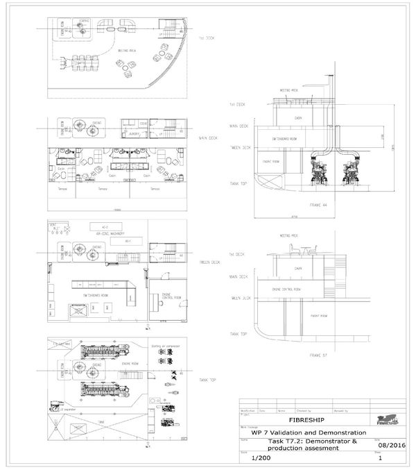
Draft García-Espinosa 766294518-image5-c.jpeg
Figure 4. Rough sketch of the general arrangement of the demonstrator to be built in FIBRESHIP
(aprox. dimensions 15.0m x 12.3m x 14.6m
).

Real scale validation and demonstration (tier 3). The final phase of the testing, validation and demonstration plan of FIBRESHIP is regarding the real scale validation and demonstration of the developed technology, aiming to demonstrate the feasibility, both technical and economic of building large-length FRP-based ships.

(1) One demonstrator -a ship block representative of the FRP large-length shipbuilding- will be engineered and built using the materials, solutions, engineering and production techniques developed within FIBRESHIP. The main objective will be to demonstrate the feasibility of the different technologies developed and assessed in the project taking in consideration their impact on the building process as well as cost effective validation. The building of the demonstrator will be completed with a number of activities to cover the evaluation of both technical -such as the assessment of the joining techniques, or the evaluation of the noise and vibration performance or the validation of the weight reduction achieved- and economic objectives -such as the assessment of the production cost reduction-.

The demonstrator will be built by H2X, and will be a block -dimensions about 15.0m x 12.3m x 14.6m- of the engine room and technical spaces below the main deck, and extended vertically up to the first superstructure deck. Figure 4 shows the draft of the general arrangement of the demonstrator -used to estimate the budget allocated for its building -. The final arrangement of the demonstrator will be generated as the outcome of the design of the representative ships to be carried out in WP4.

(2) On-board measurements campaign: A campaign of measurements -including sea state and stress/deformation in selected points- on board of a commercial ship will be performed -the Panamax container ship “Zim Luanda” owned by the project partner DANAOS-. The obtained information will be used to perform a comprehensive validation of the coupled Seakeeping-FEA analysis solver and related analysis tools developed in the project.
(3) Real-scale Underwater Radiated Noise (URN) measurement. The Underwater Radiated Noise (URN) of an existing 36 m fishing research vessel completely built in FRP by H2X will be measured in operating environment and numerically predicted for validation purposes. The measurement procedure that will be followed is the new commercial BV-NR614 developed by BV and TSI as the result of the AQUO FP7-project. The purpose of this campaign is to characterize the underwater behaviour of FRP-based ships in terms of damping, radiation efficiency, etc. as well as to generate validation information for the URN analysis model to be implemented in FIBRESHIP.
(4) Real scale demonstration in realistic operational environments: The validated computational analysis tools for hydro-elastic analysis of FRP-based ships will be demonstrated with three complete 3D CAE models corresponding to the representative ship concepts developed in FIBRESHIP. The CAE models will be analyzed in realistic operational environments to assess the structural performance of the developed solutions.
Draft García-Espinosa 766294518-image6-c.png
Draft García-Espinosa 766294518-image7-c.png
Figure 3. 3D views of the ship block demonstrator to be built in FIBRESHIP
(aprox. dimensions 15.0m x 12.3m x 14.6m).

A summary of the different small and large-scale tests -including a basic description of the different tasks- to be carried out in FIBRESHIP is given in Table 3.

New production procedures for large-length FRP vessels (WP5)

Application of standard FRP shipbuilding solutions may result in higher building costs, and therefore the development of optimized production technologies must be addressed in FIBRESHIP, aiming to ensure a profitable return-of-investment. Guidance notes on the new production procedures, validated by the classification societies, will be developed in order to complete the set of working documents commonly used in the marine industry. Finally, the technical feasibility and cost to adapt existing small and medium shipyards to this new market will be assessed as well as. One important outcome is to understand how the shipbuilding European industries (small, medium and big companies) should work together in order to implement optimal strategies for leading this new worldwide market and support policy makers.

Cost efficiency and life cycle management (WP6)

The maritime market is extremely competitive, requiring cost-efficient solutions over a life time. In addition, large scale composite ships will be highly tailored products designed to meet specific customer requirements. Cost efficiency and environmental impact reduction, needs to be proven for the uptake of these technologies in the maritime industry. The cost effectiveness of the innovative solutions to be developed within FIBRESHIP will be measured during the project and validated during the demonstration phase. For this purpose, key performance indicators will be designed.

In addition, the vessels should be kept in optimal operational conditions over their life cycle. Therefore, new inspection, repair and maintenance procedures to maintain the integrity of the FIBRESHIP solutions, structural health monitoring and long term damage control strategies need to be developed. Finally, the waste management and dismantling activities are essential to provide recommendation for optimal solutions, considering life cycle costs, risk and environmental impact.

Communication plan and inputs to pertinent regulatory regimes (WP7)

Effective external communication of FIBRESHIP is a priority, and the different dissemination activities will be part of the communication plan of the project. This plan will outline the communication strategy of the FIBRESHIP project, providing a framework for the internal and external communication activities, taking into consideration and contributing to the achievement of the project’s objectives. The main goal of this plan is to disseminate the results of the FIBRESHIP, communicating to the European industry and to society in general the expected positive outcomes of this project. An external communication consulting firm with proven track record in the dissemination of research and innovation activities at international level will act as communication advisor, in to the order to ensure the most effective implementation of the plan.

As stated above, FIBRESHIP aims to develop design and production guidelines for the three vessel categories targeted in the project. The development of these guidelines will be led by the classification societies involved in the project, and thus will become the seeds of the future rules to classify future large-length FRP-based vessels, and a crucial input for the pertinent regulatory regimes.

Moreover, FIBRESHIP will create an Advisory Board made up of different flag states and important European stakeholder actors, which will monitor the project’s progress and will provide suggestions and feedback to the consortium. FIBRESHIP Advisory Board will also offer a unique opportunity to bring the outcome of the project to the international committees in charge of the regulatory regimes.

National or international research and innovation activities

Project partners have decisively contributed to the generation of scientific knowledge, technology and design tools related to the scope of the project in several international research projects. FIBRESHIP is keen to learn from other industry sectors where there have been developments that are relevant. The outcome of the projects shown in table 2 will feed into FIBRESHIP.

Project Web address Programme Impact
AQUO www.aquo.eu EU FP7 Assessment and mitigation of noise impacts of the maritime transport on the marine environment. New commercial measurement procedure BV-NR614.
BESST www.besst.it EU FP7 A holistic LCPA methodology and a design tool for the application of the methodology.
CARGOXPRESS www.cargoxpress.eu EU FP7 LCPA of a new type of feeder vessel.
COMPETE cordis.europa.eu/project/rcn/110094_en.html EU FP7 SME Development of advanced non-invasive imaging tool for qualitative and quantitative inspection of composites used primarily but not only in aircraft applications.
CONVINCE goo.gl/R1VFnH EDA Structural materials selection for improved fire performance. Proposal of fire risk control options.
CO-PATCH www.co-patch.com EU FP7 Definition of a new repair method for large steel structures based of fibre reinforced composite patchs.
ECO-COMPASS cordis.europa.eu/project/rcn/199913_en.html H2020 Development of ecological improved composites for the use in aircraft secondary structures and interiors.
FIRE-RESIST www.fire-resist.eu EU FP7 Improving the fire resistance of high performance FRP materials for the transport sectors.
INCASS www.incass.eu EU FP7 ICT development platform combining a range of several advanced features, ranging from data management and analysis, to efficient long-range communication.
LITEBUS cordis.europa.eu/result/rcn/47406_en.html EU FP7 Modular novel technology to manufacture bus bodies using load carrying sandwich multi-material panels.
MARSTRUCT NoE www.mar.ist.utl.pt EU FP6 Network of excellence dealing with structural issues of ships, including analyses of composite structures.
MARSTRUCT VI www.marstruct-vi.com EU FP6 Permanent network in the field of ship structure analysis and assessment.
TARGETS www.targets-project.eu EU FP7 Providing substantial improvements to the overall ship energy efficiency using an holistic approach.
MOSAIC www.mosaicships.com EU FP7 Development of guidelines for the application of high strength steels and FRP materials in shipbuilding.
RISPECT cordis.europa.eu/result/rcn/59109_en.html EU FP7 Development of an expert system to evaluate the structural reliability of a ship.
SAFEDOR www.safedor.org EU FP7 Development of risk-based ship design guidelines and regulatory framework to achieve safety cost-effectively by treating it as an objective and not as a constraint.
VIBRATION fp7-vibration.eu EU FP7 Global in-flight health monitoring platform for composite aero-structures based on vibration-based methods.
Table 4. List of some R&D projects that will feed into FIBRESHIP

Ambition

Today FRP materials are extensively used for building the hull structure of crafts with length up to about 50 m. In fact, today most of the pleasure crafts and sailing yachts, passenger and car ferries, patrol and rescue crafts, and naval ships below 50 m length are built in FRP materials. These materials are also used in large secondary structures3 but only a few complete units above 50 m length -naval vessels4 -have been built in FRP materials.

The main reason for this limitation in the use of FRP materials is the obligation to use ‘steel equivalent’ structural materials to fulfil the fire-safety requirements of the Convention for the Safety of Life at Sea (SOLAS). However, today there is no question that alternative designs with suitable risk control and the use of fire retardant resins, intumescent coatings, fire insulation and active fire fighting systems can allow FRP structures to fulfil the strictest fire safety regulations. However, the lack of knowledge, guidelines and validated engineering tools has prevented the development of this market and persuade ship-owners to use more conventional materials disregarding the benefits of FRPs. In fact, current FRP structures are defined and approved by the classification societies applying very high safety margins to cover the lack of knowledge.

But fire performance is not the only challenge that has to be achieved to extend the application of FRP materials to large-length ships. Different technological gaps have to be overcome, ranging from the extensive technical assessment of the structural safety for vessels that may operate under extreme conditions, to the development of innovative design and production procedures that can significantly lower the life cycle costs of the future FRP-based ships compared with conventional designs.

FIBRESHIP aspires to fill those gaps and make the use of composite materials ready for building complete hulls and superstructures of large ships. Among the different advances beyond the state-of-the-art that the project must achieve, and the most important milestones that should be reached by the project to fulfil its objectives are:

  • FIBRESHIP will research the functional characteristics of innovative FRPs for their massive application in shipbuilding. The final aim is to identify and categorize materials for different solutions and audit them to obtain the future certificate for marine application, and finally develop a “Catalogue of applicable materials and joining techniques recommended by classification societies”.
  • Moreover, FIBRESHIP will evaluate innovative solutions like kaolin nano-clay particles intumescence coatings or JetstopTM, and will research on the functional characteristics of biomaterials that use flax fibres or regenerated cellulose, and FRP based on recycled fibres, which can offer a cost-efficient alternative to build secondary structural elements.
  • FIBRESHIP will research for innovative joints that can reduce the production cost. State-of-the-art solutions in the aerospace and automotive sectors such as the ‘resistive implant welding’ or novel hybrid joint techniques such as COMELDTM will be assessed for marine applications.
  • The new materials conception to be developed in FIBRESHIP will include embedded sensors for condition monitoring, which will be combined with an innovative inverse FEA analysis method to evaluate the delamination damage pattern of a ship structure.
  • FIBRESHIP will design and assess three different vessel concepts; a container ship, a ferry Ro-Pax vessel and a fishing research vessel. For those vessels, guidelines to enable complete engineering design, building and certification of FRP vessels will be developed, covering all the required aspects on the structural design, fire protection and production.
  • FIBRESHIP will develop advanced computational analysis solutions for assessing the lifespan mechanical integrity of FRP large-scale ships, validated against real scale measurements and small-scale experiments. Moreover, an existing fire-dynamics framework will be extended and validated to be able to simulate realistic fire scenarios on relevant real-scale models.
  • A comprehensive demonstration of the solutions to be developed will be carried out in FIBRESHIP, following a three-tier approach, including extensive small-scale experiments, representative real-scale experiments in a simulated operational environment, and real scale demonstration in realistic operational environments by using advanced simulation solutions.
  • FIBRESHIP will develop optimized production techniques for massive application of FRP materials for modular superstructures, and entire large ship structures.
  • FIBRESHIP will develop new inspection, repair and maintenance procedures as well as structural health monitoring and long term damage control strategies to maintain the integrity of the vessels over lifespan.
  • FIBRESHIP will define a proper life-cycle for the material, thinking about how the material will be reused or recycled at the different lifetime stages.
  • A comprehensive cost-effectiveness analysis of the new concepts and solutions will be conducted, using clear quantitative performance and financial indicators to be developed.
  • FIBRESHIP will develop a communication plan that will use different dissemination channels. Furthermore, FIBRESHIP will create an Advisory Board that will offer a unique opportunity to bring the outcome of the project to the international committees in charge of the regulatory regimes.

The achievement of all these milestones will lead to an important advance in the state of the art of how FRP materials are used in shipbuilding. But, more importantly, it will bring Europe’s shipbuilding and shipping industry a step forward from its current technological level; the potential for reduced life cycle costs can become the new FRP ships a reference for the industry.


(3) The main recent references are the Panamax bulk carrier Oshima (2015) which obtained the first certificate ever for a FRP composite construction -hatches- on a SOLAS vessel, and the presentation of a new cabin structure satisfying all the requirements of SOLAS and the IMO FTP Code (developed in collaboration among Carnival UK, PE Composites, Lloyd’s Register and others).

(4) We can single out the Swedish Navy Visby stealth corvette (73 m overall length, 2004), the Royal Navy’s Hunt class mine counter measures vessels (60 m, 1978-1988) and the Sandown/Racecourse class single role mine hunter (50 m long, 1989-2001). We must also stand out the largest carbon composite yachts built to date, the SuperSport wave-piercing superyacht (48 m, 2014) and the Match Point VF-15 superyacht (49 m, 2009).

Back to Top

Document information

Published on 01/01/2016

Licence: CC BY-NC-SA license

Document Score

0

Views 565
Recommendations 0

Share this document