Abstract: Rainfall infiltration is an important factor affecting the stability of the ancient city wall.To state the wall line spring door where, for example, soil temperature and humidity sensor, the earth pressure meter and rain gauge carried out such as rainfall, volume moisture content and soil pressure monitoring, analyzed the inner core wall soil volume moisture content and soil pressure response law of rainfall different rainfall conditions is studied through numerical simulation method the stability of the ancient city wall.The results show that :(1) rainfall has a significant effect on the volume moisture content and earth pressure of the inner core soil;(2) The response to rainfall is different at different depths of the city wall, and the response to rainfall in the middle part of the city wall has a certain hysteresis.(3) Compared with the low-intensity and long-duration rainfall, the high-intensity and short-duration rainfall has a greater impact on the stability of the city wall.The research results have certain guiding significance for the protection and monitoring of the ancient city wall.

Key words: In-situ monitoring; Ancient city wall;Rainfall infiltration; Stability


The deformation and damage characteristics of the ancient city wall can be summarized as uneven settlement of top surface and foundation, wall bulge and weathering erosion, wall crack breeding and dumping collapse and other[1]. The ancient city wall shows that these deformation and damage forms are often caused by the joint action of various damage factors, according to the control factors can be refined into rainfall, weathering, extreme temperature and potential structural surface. Rainfall, as one of the main factors that induce the deformation and damage of the ancient city wall, will not only erode the brick filling material on the city wall surface, but also exert hydroeffect on the core soil of the ancient city wall, leading to the deformation and instability of the ancient city wall.

The infiltration of rainfall in the city wall is a typical unsaturated seepage process. When the rainwater seeps into the non-saturated soil, the soil saturation gradually increases, and the matrix absorption gradually decreases, resulting in reduced shear strength and forming a sliding surface. Under the action of heavy rainfall for a short time, heavy rain seeps along the cracks between the masonry on the top of the city wall, resulting in sliding deformation of the inner core soil, and then squeezing the outsourcing masonry, causing swelling, cracking and even unstable collapse of the city wall. At present, many scholars on the ancient city wall rainfall infiltration influence mainly focus on numerical simulation to carry out relevant research work. Wang Lei [2] used FLAC3D to analyze the overall stability of the city wall, which showed that the side wall cracks have similar characteristics before the slope collapse, and there are safety risks to the city wall. Mi Heping [3] applied the DP yield criterion to simulate the displacement deformation of the city wall under different loads, which showed that the city wall is in a stable state under the self-weight load. Wu Chaoying [4] studied the deformation model of the ancient wall, and showed that the rainfall had significant influence on the wall deformation. Zhang Liqian [5] studied the city wall stability under the long-time rainfall and full infiltration, and the results showed that the rain water infiltration had an adverse impact on the stability of the city wall structure. Jiang Feng[6] studied the stability, deformation and destruction law of the city wall under rainfall conditions. Research showed that the stability of the city wall was declining under different intensity rainfall, and the large strain was concentrated at the outer slope foot of the city wall. Zhou Changdong [7] studied the influence of different rainfall holding on the stability of the Forbidden City wall, and the results showed that the plastic strain of the core and the outsourced masonry in the wall gradually increased with the rainfall time. Due to the particularity of the ancient wall, the rainfall based on the monitoring in situ is rarely reported.

In view of this situation, relying on the project of Fucheng in Lishui, we use soil temperature and humidity sensor, soil pressure gauge and rainfall gauge, analyze the mechanical parameters of core soil through drilling sampling, establish the numerical model of rainfall infiltration under multiple working conditions, analyze the influence of the rainfall infiltration on wall stability, obtain the stability coefficient and develop the ancient wall protection and monitoring scheme.

1 Project overview

The City Wall of Chuzhou Prefecture is located in Lishui City, Zhejiang Province, built in the Tang and Song Dynasties, with six [8] gates, namely, Wangjing Gate, Yuquan Gate, Hongchun Gate, Nanming Gate, Kuo Cang Gate and Tonghui Gate, laying the basic pattern of the city wall of Chuzhou Prefecture. The city wall of Xingchun men to Nanming section is located at the intersection of Lishui Ocean Road and Luboring Street with a total length of 928 meters, the top width is 6.4-8.7 meters, and the bottom width of it is 7.5-9 meters. A total of 7 horse faces are built on the outside. The north-south section, east near ocean street, the tower building remains, the underground part still inside the gate and threshold stone, now built Wengcheng and the second floor tower, layout with distinct mountain city characteristics, scientific and reasonable masonry technology, is a physical example of the study of the development of ancient Chinese city wall, has important historical, scientific, artistic value. In July 2019, the northThe rain collapsed, and the collapse mouth was about 20 meters. From June 6 to June 8,2020, the drainage wall was cracked and pulled during the heavy rain.

Review 782163297664-image1.jpeg
Fig.1 The wall of XingChun Gate collapsed

2 Arrangement and embedding of the monitoring instruments

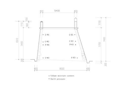
This paper adopts an automatic monitoring system to monitor the rainfall, soil water content and soil pressure of the north wall wall, as shown in Figure 2. The soil moisture content sensor is buried at 1m,3m,5m at the top of the city wall, and the soil pressure gauge is buried at the buried depth of 3.5m. See Table 1 and Figure 3 for the buried instruments and their numbers.

Review 782163297664-image2.jpeg
Fig.2 The monitoring area of the north section of the wall of Xingchun Gate
Table.1 Instrument usage list
Measurement items Instrument name amount Unit
rainfall Tipping bucket automatic rain gauge 1 mm
Volume moisture content Soil temperature and humidity sensor(XK-102STRWS) 6 %
Earth pressure Vibrating string earth pressure gauge(TYH series) 2 Pa


Review 782163297664-image3.png
Fig.3 Wall monitoring layout

3 Analysis of monitoring results

3.1 Overall characteristics of water content in the city wall

The time range curve of rainfall and volume moisture content from 27 May 2020 to 27 April 21, due to instrument failure, 2021 The reason causes intermittent individual monitoring data, and the C-E3 failure stopped working), and the overall characteristics of volume water content rainfall response can be obtained. The volume water content in the core soil in the city wall is obviously affected by rainfall, the volume water content change curve in the rainy season (6 ~ September, 1 ~ April) is serrated, and the volume water content change in the dry season (10 ~ December) is small and wavy. The volume water content in rainy season is higher than that in dry season, decreasing with the rainfall. The main reason for the decline in the water content of the core of the city wall is the seepage of the shallow soil into the deep soil under gravity and matrix suction with the cessation of rain. At the same time, due to the high air temperature in summer, the evaporation effect of the outer surface of the city wall makes the volume moisture content of the shallow core soil decline rapidly.

volume water content of the east city wall increases with the burial depth, and the volume water content at 3m of the west city wall is higher than that at 1m and 5m of the city wall. The reason for the uneven distribution of water content on the east and west sides of the city wall may be that most of the core soil in the city wall is rammed soil with uneven soil, and there are some differences in the drainage system of the east and west sides of the west wall.

Review 782163297664-image4.jpeg

Fig.4 Time history curve of daily rainfall and volumetric water content in May 27, 2020 solstice

3.2 Volume water content of the city wall during heavy rainfall

Based on the basis of Fig. 4, the time range curve of daily rainfall and volume moisture content in the wall during heavy rainfall from 27 May 2020 to 27 June 2020 is analyzed. The results are shown in Fig. 5.

It can be seen from Figure 5 , the volume moisture content of the core wall at the different depths has different response to rainfall. On May 30,2020, at 18.3mm/d, the volume water content at the top of the east wall responded to rainfall rapidly from 38.2% to 42.3%. The volume moisture content growth gradually slowed over time. After the continuous rainfall stopped on 7 June 2020, the volume water content did not decrease rapidly, but it slowly fell over time. The response to rainfall at 3m depth at the top of the east wall was about 6 days behind at 1m depth and the variation was small. The volume water content of the core in the west wall was relatively slow in the response to rainfall, while the 1m depth at the top of the west wall lagged by 6 days, while the volume water content at 3m depth and 5m depth was basically unchanged.

The volume water content of the shallow layer at the top of the city wall is more sensitive to the response to rainfall, and the volume water content of the city wall also responds to rainfall, which can be verified from the local collapse site of the city wall in July 2019. At the same time, after the rainfall is stopped, the water content of the core soil in the city wall continues to change, indicating that for the potential instability caused by rainfall, drainage measures should be taken during the continuous rainfall, and also needs to focus on the potential lagging instability of the city wall after the end of the rainfall.

Review 782163297664-image5.jpeg
Fig.5 Time history curve of daily rainfall on May 27, 2020 solstice on June 27, 2020 and volume moisture content of core soil inside the city wall

3.3 Analysis of rainfall of vertical earth pressure

Figure 6 shows the time of the vertical soil pressure and volume moisture content and rainfall in the city wall from June 1,2020 to August 1 7,2020 Range curve (P-E1 failed to get the reading). As can be seen from FIG. 6, the pressure fluctuation of the core soil in the city wall shows a good positive correlation characteristics with the rainfall and the volume water content at 1m depth of the city wall. During the concentrated rainfall on June 1,2020, the volume water content at 1 m depth of the city wall increased and the vertical soil pressure increased. After the rainfall decreased on June 11, the volume water content gradually decreased and the soil pressure gradually increased. The reason for this feature is that concentrated rainfall transforms the core soil above the soil wall from unsaturated state to saturated state, the soil body increases severely, and the soil pressure increases accordingly. Through analysis, rainfall infiltration will cause the increase of soil moisture content in the core, increase the soil pressure and affect the stability of the city wall.

Review 782163297664-image6.jpeg
Fig.6 Time-history curve of vertical earth pressure, volumetric water content and rainfall in the inner soil of city wall on June 1, 2020 solstice, August 17, 2020

4 Sensitivity analysis of wall stability

4.1 Model building and material parameter setting

In order to further study the influence of rainfall intensity and rainfall duration factors on the stability of the ancient city wall, this paper establishes a finite element seepage numerical model, including 1034 units and 1170 nodes, and the finite element numerical model is shown in Figure 7. The field sampling of the soil drill in the core of the city wall has obtained the water content, density, pore ratio, Poisson ratio, adhesion force and internal friction angle, and fits the inner core soil-water characteristic curve by the V-G[9] model, as shown in Figure 8.

Review 782163297664-image7.jpeg
Fig.7 Finite element numerical model
Table.2 Model material property
water content /% Wet density /g.cm-3 saturability /% void ratio Poisson's ratio cohesion /kPa frictional angle /(°)
26.3 1.96 94.0 0.685 0.27 5.9 21


Review 782163297664-image8.jpeg Review 782163297664-image9.jpeg
(a) Relation curve between matric suction and saturation permeability (b) Curve of saturation and permeability coefficient


Fig.8 Soil-water characteristic curve

4.2 Boundary condition and calculation condition setting

The boundary conditions of the model constrain the horizontal and vertical displacements of the bottom. In addition, the boundary conditions of pore pressure should be set. The impervious water surface is at the bottom of the model, and the impervious water surface is at the top of the model.The rainfall boundary is expressed in terms of rainfall intensity, i.e., rainfall (mm/h).Two working conditions of high intensity and short duration and low intensity and long duration were set according to local meteorological data over the years, as shown in Table 3.

Table.3 working condition of calculation
Calculation of the working conditions rainfall intensity(mm/h) duration of rainfall (h)
High-intensity and short duration 25 8
Low-intensity and long duration 0.4 168


4.3 Result and analysis

Intensity reduction method was used to analyze the stability of two rainfall conditions[10],was used for stability analysis of two kinds of rainfall conditions and obtained the plastic strain cloud map as shown in Figure 9. The stability safety factor was calculated by the displacement inflection point at the maximum plastic strain. According to the plastic strain cloud map, the plastic deformation is mainly distributed in the slope area on both sides. In the case of high intensity short duration rainfall, the inner core soil in the shallow city wall changes greatly, and forms a certain penetration area, and its stability safety coefficient is 1.38. In the case of low intensity short duration rainfall, the inner core soil plasticity changes are small, the plastic area expands with the infiltration depth, and its stability safety coefficient is 1.52. It can be concluded that compared with the low-intensity and long-duration rainfall, the short-term heavy rainfall has a great impact on the stability of the city wall.

The main reasons for the small rainfall, and the instability of the city wall is mainly caused by the lower strength of the shallow core and the increase of the soil weight. In the case of low intensity and short duration rain, most of the rainwater seeps into the core soil in the city wall, and with the duration of the rainfall time, the rainfall infiltration depth increases, leading in the reduction of the matrix absorption, the weight of the soil and the strength decreases, resulting in deep instability phenomenon.

Review 782163297664-image10-c.png Review 782163297664-image11-c.png
(a) High-intensity and short duration (b)Low-intensity and long duration


Fig.9 Plastic strain nephogram

5 Conclusion

Based on the in-situ automatic monitoring system, the volume water content and the response characteristics of soil pressure rainfall are analyzed in detail, and the main conclusions are drawn as follows:

(1)The volume water content of the core city wall varies regularly with the rainfall, with the distribution of the east and west sides of the city wall. The volume water content at the top of the city wall is obvious and sensitive to the rainfall response, the rainfall response in the middle of the city wall lags behind, and the volume water content at the bottom of the city wall is basically unchanged.

(2)The fluctuation of soil pressure in the city wall has obvious positive correlation with rainfall and volume water content.

(3)Numerical simulation analysis shows that under the short-term heavy rainfall, the shallow plastic deformation has great influence on the stability of the wall. At the same time, the long-term light rain also has a potential damage impact on the city wall.

参考文献

[1] ZHANG Binliang,SUN Hao,SONG Qihai.Analysis of the influence of meteorological factors on the wall expansion of Ming dynasty’s rampart in Nanjing[J]. Chinese Journal of Cancer Research, 2020(09):136-139.

[2] WANG Lei,LI Jing. Stability analysis of Xi 'an city wall tower based on FLAC3d[J]. Shaanxi construction, 2018(09):8-10.

[3] MI Heping,ZENG Fankui. Stability Analysis of Xi 'an Yongning Gate Wall[J]. Sichuan Building Science, 2014,40(01):132-135.

[4] WU Chaoying,LI Le,WANG Zhenrong,et al. Classification and identification of deformation and failure modes of ancient city walls[J]. Journal of Engineering Geology, 2017,25(04):1132-1140.

[5] ZHANG Liqian,LI Hongsong,HUANG Chunlian,et al. Stability analysis of the ancient city wall of Pingyao[J]. special structure, 2019,36(03):51-55.

[6] JIANG Feng,JIANG Chengcheng,HUANG Zhiyi,et al. Simulation analysis of the stability of the north wall in Baikou ruins under rainfall and seepage[J]. Chinese Science and Technology Papers, 2020,15(08):862-868+873.

[7] ZHOU Changdong,LI Yimin.Influence of rainfall infiltration on stability of Forbidden City wall[J]. Journal of Building Structures, 2020,41(S1):286-296.

[8] CAO Hui,ZHOU Shaohua.An Archaeaologic and Textual Study on Xingchun Gate of Ancient Chuzhou Prefecture.[J]. Journal of Lishui University, 2018,40(04):68-73.

[9] Van Genuchten M T. A closed-form equation for predicting the hydraulic conductivity of unsaturated soils [J]. Soil Science Society of America Journal, 1980, 44(5): 895.

[10] BI Zhonghui,ZHAI Yafei,TANG Yujie,CUI Binhui.Finite element strength reduction method-based reliability analysis on rainfall-infiltrated bedrock-typed slope, 2020,51(09):187-192.

Back to Top

Document information

Published on 23/03/22
Accepted on 10/03/22
Submitted on 31/07/21

Volume 38, Issue 1, 2022
DOI: 10.23967/j.rimni.2022.03.005
Licence: CC BY-NC-SA license

Document Score

0

Views 146
Recommendations 0

Share this document

claim authorship

Are you one of the authors of this document?